
Castaway by G.J. Gardner Homes
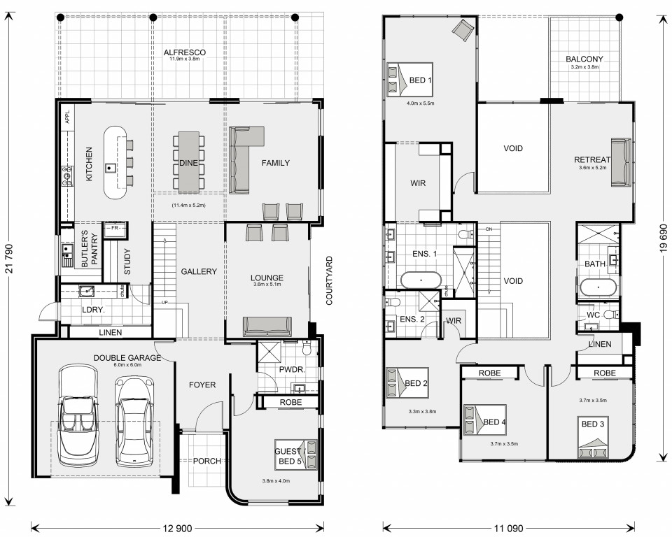
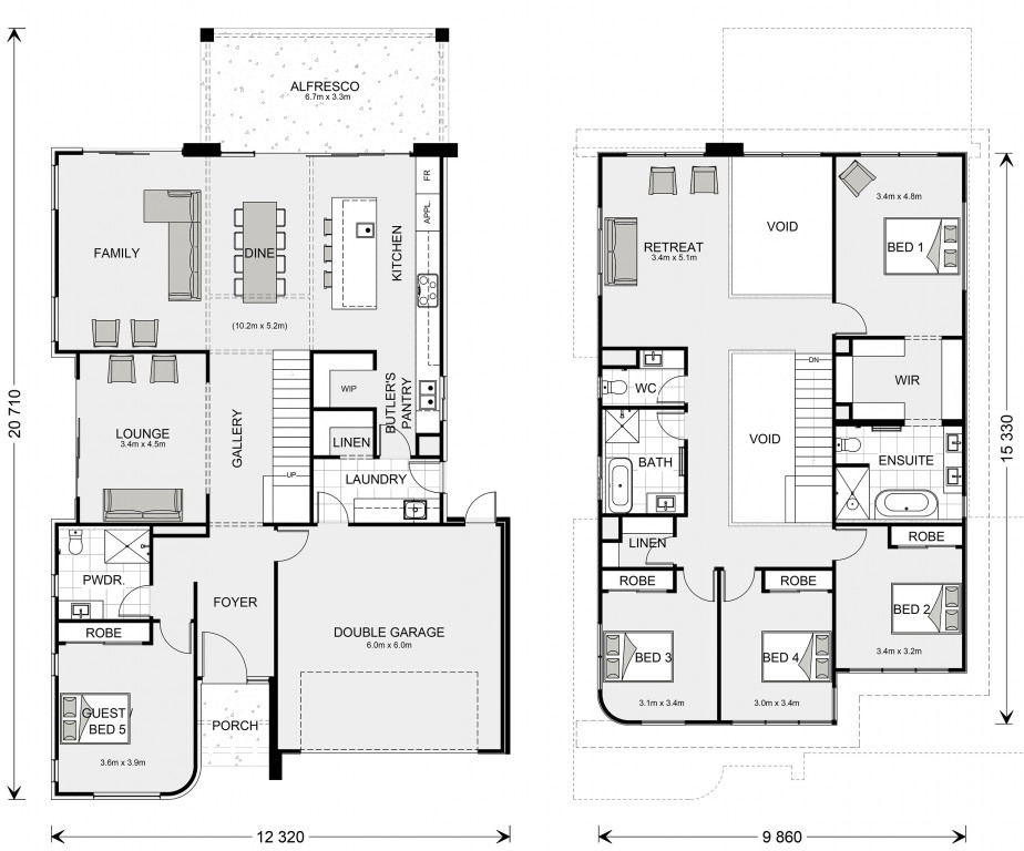
The Castaway is a luxurious double storey family home with generous open plan living and private spaces that delivers a variety of possibilities to entertain and relax.
Luxurious and spacious are 2 words that describe the gourmet kitchen and butler’s pantry, overlooking the family and dining that extend outdoors to a huge alfresco making entertaining a flowing enjoyable experience. The central voids accentuate the sense of space and grandeur that form the main living area of this impressive home. Relax and unwind in the central lounge room with sliding doors that open to a private courtyard to enjoy some quiet reflection, watch a movie or soak up the morning sunlight.
Five bedrooms throughout include a generous guest room and powder room downstairs. An impressive master suite upstairs privately positioned to the rear boasts a huge walk-in robe and ensuite where you can escape and relax in privacy while enjoying amazing scenery at the rear of the site.
A designer staircase with large architectural voids offers plenty of natural light into the home providing spacious, relaxing interiors while maintaining a sense of privacy throughout the home.
Overlooking the floor below, is a separate retreat area and balcony to relax and unwind, taking full advantage of elevated views.
Display Homes & 3D Tours for Castaway by G.J. Gardner Homes
More House and Land Packages by G.J. Gardner Homes (Home Builder)

3
2
2Inclusions:
+ Hamptons Facade
+ Double Glazed Windows & Sliding Doors
+ Carpet & Tiles throughout
+ Ceiling Heights - 2550mm (8 foot 6)
+ Caeserstone Kitchen Bench tops
+ Under Roof Alfresco