Cressbrook by G.J. Gardner Homes
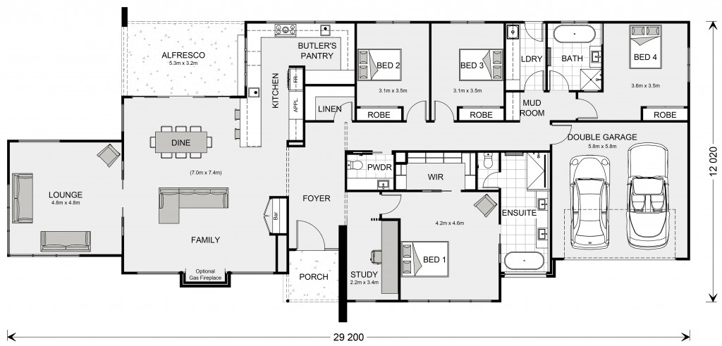
The Cressbrook is a spacious, impressive home featuring a wide frontage and a stunning open plan living space that flows from front to back, taking full advantage of surrounding views.
There is plenty of room for entertaining with generous spaces for family and friends including a large gourmet kitchen positioned to provide easy connections between the living areas and outdoor alfresco.
A large master suite takes in the views at the front of the home, offering escape and privacy with its well-equipped ensuite and large walk in robe. The additional 3 generous bedrooms and family bathroom are located to the rear for that extra slice of privacy.
A separate lounge room and study are the added features that makes the Cressbrook an enjoyable home with everything you need.
Display Homes & 3D Tours for Cressbrook by G.J. Gardner Homes
More House and Land Packages by G.J. Gardner Homes (Home Builder)
4
2
2
You connect with your preferred house and land specialist nominated within this page all have customised H&L specials to suit all budgets-
Elevated blocks capture panoramic landscape views across rural farmlands with Tower Hill and Koroit as the scenic backdrop to the west.
4
2.5
2
This is a home for the discerning buyer who wants clever design in tune with the needs of contemporary living. With its effortless connections throughout the home, here you can embrace both family time and easily find private space for relaxation.
An open plan family zone creates the perfect space for entertaining friends and family, with a central kitchen and walk-in-pantry overlooking the dining, family, and alfresco areas. Plus, a separate lounge allows for the opportunity to escape and relax.
The master bedroom with well-appointed ensuite and walk in robe is privately positioned in the front of the home while at the rear is the kids’ zone with the additional bedrooms, central activity room and family bathroom.
Allow yourself to imagine the lifestyle you’ve always wanted; in the home you deserve!