
Millbrook by G.J. Gardner Homes
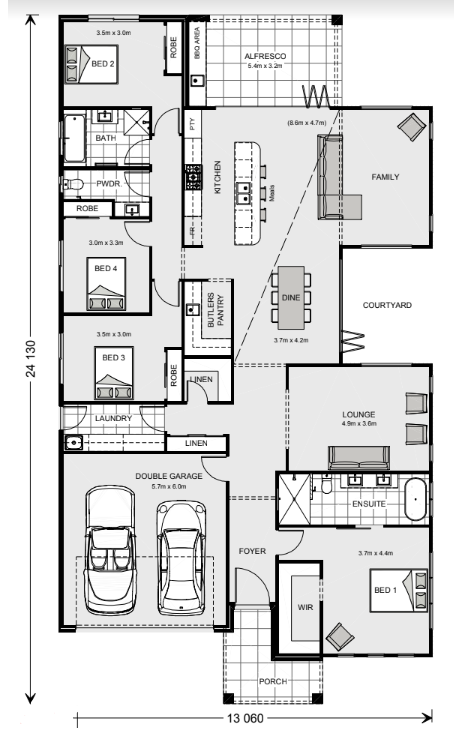
Made for entertaining and everyday living, the Millbrook is a modern family home designed with plenty of space and added luxurious features for the whole family to enjoy.
The heart of the home provides an enjoyable open plan living space, featuring a stunning kitchen and butler’s pantry adjoined by the dining and family rooms that extend outdoors to the rear alfresco and a central private courtyard.
A generous master suite with large walk-in robe and its lavishly outfitted ensuite is privately positioned behind a separate lounge
room at the front of the home; an ideal space to retreat and unwind.
Additional bedrooms and the family bathroom at the rear of the home provide private spaces for the rest of the household.
Extra features compliment the design with the inclusion of a study or mudroom making the Millbrook an ideal place for any family to call home.

4
