Cedar by Glenvill Homes

Offered in three expansive configurations – Cedar 50, 41 and 35 – This double-storey design pairs striking design with genuine liveability. Designed for 14m wide lots, each variation delivers exceptional space, flexibility and refinement across two levels.

From the moment you step through the generous entry, Cedar impresses with its layered living zones, considered proportions and effortless flow. With up to five oversized bedrooms, including a ground-floor guest suite, the design caters perfectly to multigenerational families or those who love to host. The upper floor offers a luxurious master suite with a walk-in robe and statement ensuite, as well as a versatile multi-purpose room, study nook and abundant storage.

Downstairs, expansive living, dining and kitchen zones are complemented by additional spaces such as a dedicated study, wine store, and butler’s pantry (available in select configurations). Oversized windows and seamless access to the alfresco create a strong connection to the outdoors, flooding the home with natural light.

Cedar is not just a home – it’s a statement in modern family living.


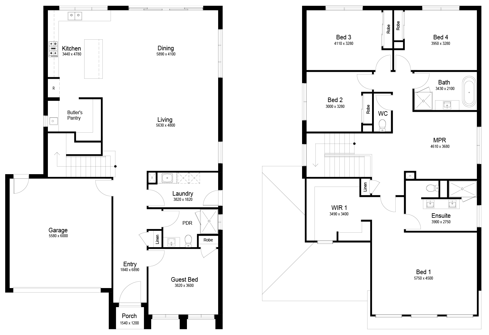
Floor-plan options for Cedar

Cedar 35
Bed 5
Bath 3.5
Home Design: Cedar
Building Type: Double Storey
Floor Area: 329.25m2
House Width: 11.9m
House Length: 17.7m
Min Block Width: 14m
Min Block Depth: 25m
Cedar 41
Bed 5
Bath 3.5
Home Design: Cedar
Building Type: Double Storey
Floor Area: 388.06m2
House Width: 11.9m
House Length: 20.7m
Min Block Width: 14m
Min Block Depth: 28m
Cedar 50
Bed 5
Bath 3.5
Home Design: Cedar
Building Type: Double Storey
Floor Area: 466.56m2
House Width: 11.9m
House Length: 24.7m
Min Block Width: 14m
Min Block Depth: 32m

More House and Land Packages by Glenvill Homes (Home Builder)


More Townhouses by Glenvill Homes (Home Builder)

Bed  4 Bath  3 Car  2
Suburb: Clyde North VIC 3978
Land Size: 168.00m²
Floor Area: 19.1sq
This expansive, thoughtfully designed home offers generous proportions for families of all sizes, with light-filled open-plan living and a seamless flow between the kitchen, living, and dining areas. The living and dining area opens onto a tranquil patio and backyard, creating the perfect setting for entertaining or everyday living.

Make it your own by choosing the interior colour palette for the kitchen and bathrooms.

Upstairs, the master bedroom features a walk-in robe and private ensuite, while two additional bedrooms with built-in robes share a central bathroom, creating a peaceful family retreat.

On the ground floor, a fourth bedroom with a built-in robe provides flexibility for guests, a home office, or multigenerational living. A separate laundry, linen cupboard, and double garage complete the layout, adding everyday practicality.

Glenvill Homes proudly presents this exceptional home within the highly sought after Five Farms Estate in Clyde North, a growing community known for its family-friendly lifestyle and long-term appeal.

Perfect for first homebuyers, downsizers, and savvy investors, these homes are fixed price with full turnkey inclusions, offering a stress-free and enjoyable build journey. Each home features its own individual land title and is independently built.
Price: $655,840
Bed  4 Bath  3 Car  2
Suburb: Clyde North VIC 3978
Land Size: 168.00m²
Floor Area: 19.1sq
This expansive, thoughtfully designed home offers generous proportions for families of all sizes, with light-filled open-plan living and a seamless flow between the kitchen, living, and dining areas. The living and dining area opens onto a tranquil patio and backyard, creating the perfect setting for entertaining or everyday living.

Make it your own by choosing the interior colour palette for the kitchen and bathrooms.

Upstairs, the master bedroom features a walk-in robe and private ensuite, while two additional bedrooms with built-in robes share a central bathroom, creating a peaceful family retreat.

On the ground floor, a fourth bedroom with a built-in robe provides flexibility for guests, a home office, or multigenerational living. A separate laundry, linen cupboard, and double garage complete the layout, adding everyday practicality.

Glenvill Homes proudly presents this exceptional home within the highly sought after Five Farms Estate in Clyde North, a growing community known for its family-friendly lifestyle and long-term appeal.

Perfect for first homebuyers, downsizers, and savvy investors, these homes are fixed price with full turnkey inclusions, offering a stress-free and enjoyable build journey. Each home features its own individual land title and is independently built.
Price: $655,840
Cedar by Glenvill Homes