Rosalie by Glenvill Homes

Offered in four generous configurations – Rosalie 60, 51, 42 and 33 – this double-storey home is designed to impress. With a commanding presence and floorplans tailored for 16m-wide lots, each variation delivers an exceptional sense of scale, light and modern luxury.

From the moment you enter, Rosalie captivates with its thoughtful zoning, soaring voids and seamless transitions between spaces. Each design features multiple living areas, both upstairs and downstairs, creating effortless flow and flexibility for growing families. Generous bedrooms are paired with ample storage, with select floorplans including guest accommodation on the ground floor. The expansive master suite offers a private retreat with oversized walk-in robes and hotel-inspired bathrooms.

At the heart of the home, open-plan living, dining and kitchen zones extend to alfresco areas that invite entertaining and relaxed outdoor living. The inclusion of study spaces, walk-in pantries and dedicated lounge or media rooms across the range ensures every household need is met with elegance and practicality.

Whether you choose the grand proportions of the Rosalie 60 or the cleverly curated layout of the Rosalie 33, each home is a testament to Glenvill’s enduring commitment to design excellence, craftsmanship and liveable luxury.


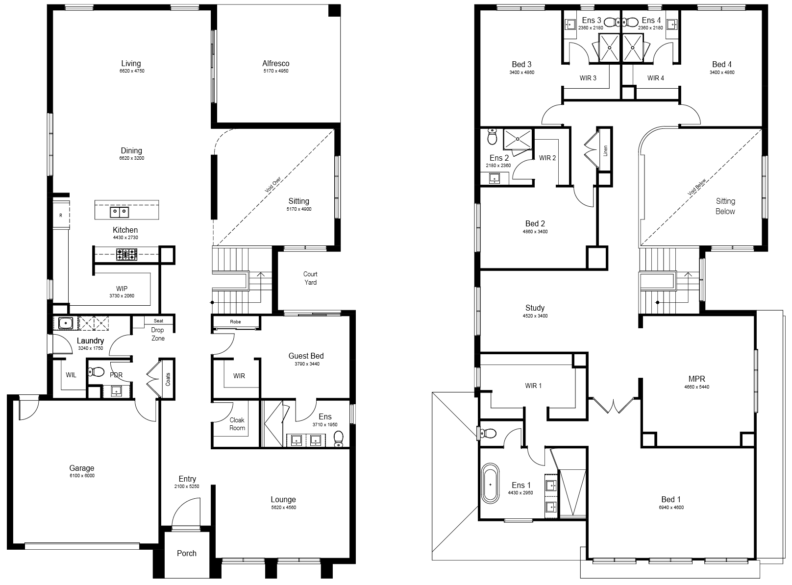
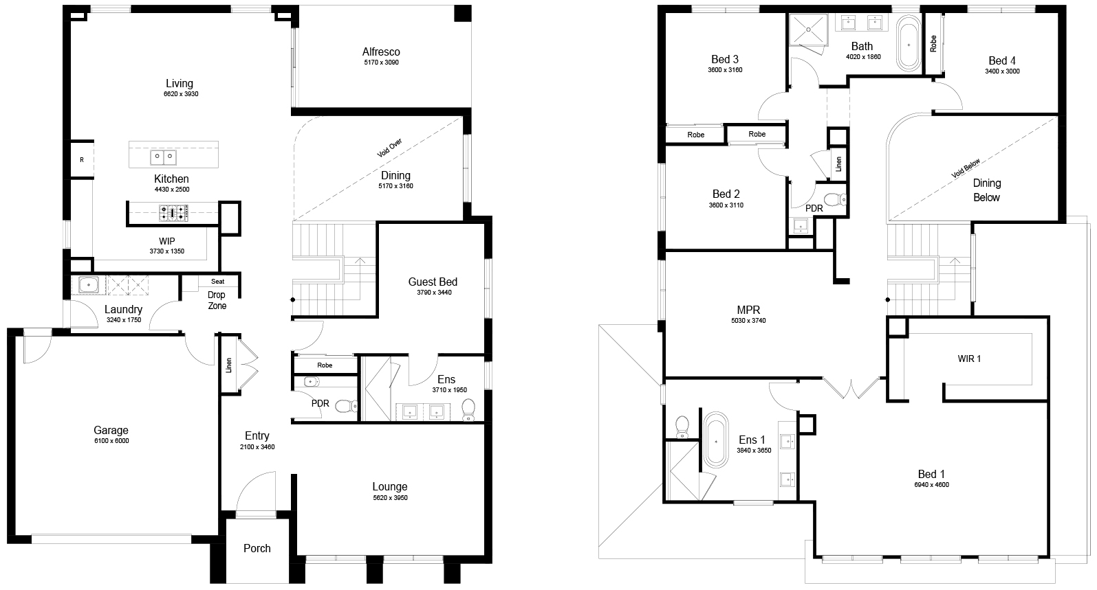
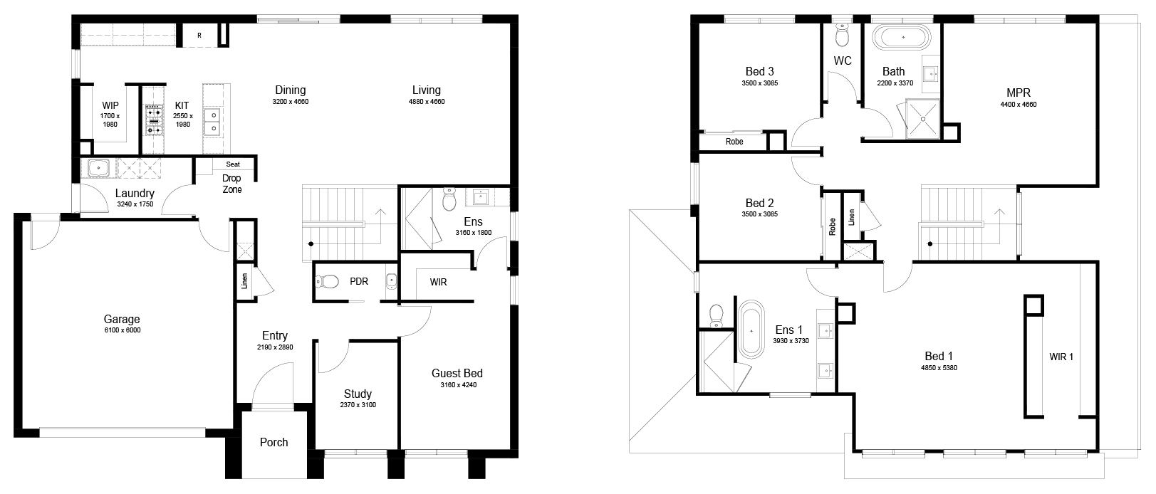
Floor-plan options for Rosalie

Rosalie 33
Bed 4
Bath 3.5
Home Design: Rosalie
Building Type: Double Storey
Floor Area: 311.41m2
House Width: 14.57m
House Length: 13.4m
Min Block Width: 16m
Min Block Depth: 21m
Rosalie 42
Bed 5
Bath 3.5
Home Design: Rosalie
Building Type: Double Storey
Floor Area: 391.87m2
House Width: 14.57m
House Length: 17.4m
Min Block Width: 16m
Min Block Depth: 25m
Rosalie 51
Bed 5
Bath 5.5
Home Design: Rosalie
Building Type: Double Storey
Floor Area: 474.83m2
House Width: 14.57m
House Length: 20.4m
Min Block Width: 16m
Min Block Depth: 28m
Rosalie 60
Bed 5
Bath 5.5
Home Design: Rosalie
Building Type: Double Storey
Floor Area: 562.90m2
House Width: 14.57m
House Length: 24m
Min Block Width: 16m
Min Block Depth: 32m

More House and Land Packages by Glenvill Homes (Home Builder)


More Townhouses by Glenvill Homes (Home Builder)

Bed  4 Bath  3 Car  2
Suburb: Clyde North VIC 3978
Land Size: 168.00m²
Floor Area: 19.1sq
This expansive, thoughtfully designed home offers generous proportions for families of all sizes, with light-filled open-plan living and a seamless flow between the kitchen, living, and dining areas. The living and dining area opens onto a tranquil patio and backyard, creating the perfect setting for entertaining or everyday living.

Make it your own by choosing the interior colour palette for the kitchen and bathrooms.

Upstairs, the master bedroom features a walk-in robe and private ensuite, while two additional bedrooms with built-in robes share a central bathroom, creating a peaceful family retreat.

On the ground floor, a fourth bedroom with a built-in robe provides flexibility for guests, a home office, or multigenerational living. A separate laundry, linen cupboard, and double garage complete the layout, adding everyday practicality.

Glenvill Homes proudly presents this exceptional home within the highly sought after Five Farms Estate in Clyde North, a growing community known for its family-friendly lifestyle and long-term appeal.

Perfect for first homebuyers, downsizers, and savvy investors, these homes are fixed price with full turnkey inclusions, offering a stress-free and enjoyable build journey. Each home features its own individual land title and is independently built.
Price: $655,840
Rosalie by Glenvill Homes