Sanctuary by Green Homes Australia
This innovative design showcases the latest trends in sustainable living with open living spaces capturing the abundant sunlight entering the home. No need to rely on your air conditioning and heater all year long, this home is designed in a way that will use all the natural elements such as sunlight and breezing to keep the home cool in summer and warm in winter. The rooftop garden will give you the freedom of space and a personal connection to your elevated garden with the benefit of cooling breezes as they enter the home. Built using lightweight wall systems for maximum external wall efficiencies. We also ensure that window placement is absolutely correct to maximise solar passive benefits.
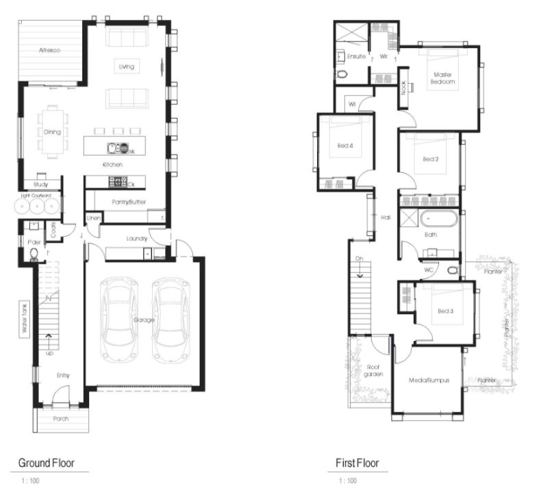
Offering four bedrooms, double garage, two and a half bathrooms, media room, rooftop garden and open plan living, dining and kitchen areas. This two storey architectural design is ideal for smaller lots with a frontage of 12.5m. This design offers a modern and luxurious lifestyle which means your home will definitely stand out in your neighbourhood!
4
