Retreat by Hallmark Homes

DISPLAY HOME

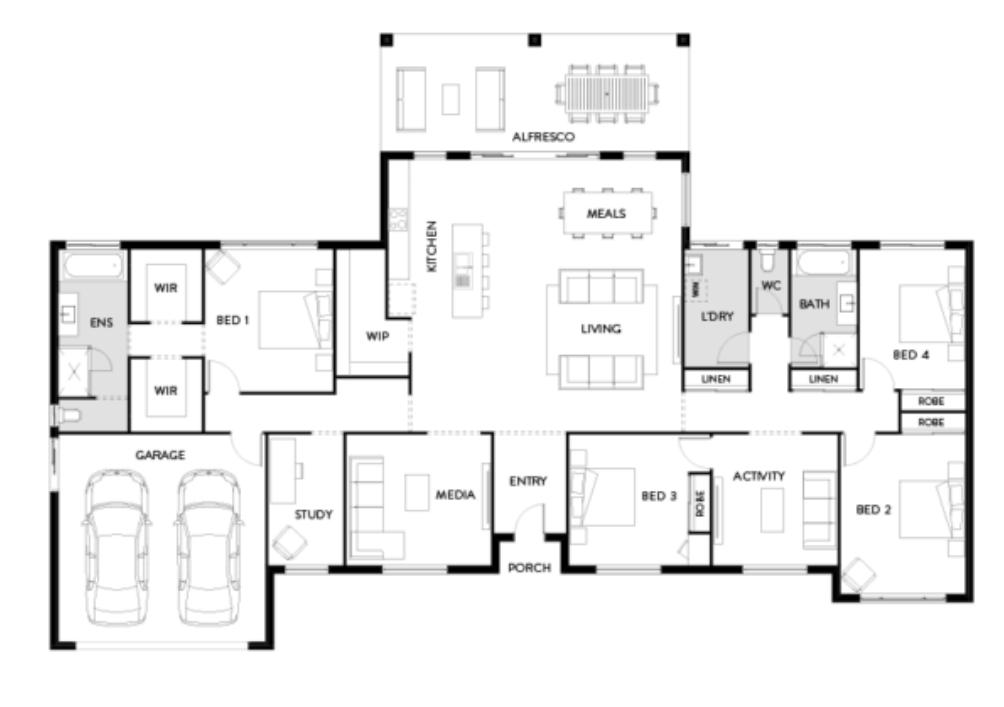
The Retreat 303 has been designed with space in mind and is perfect for growing families or those wanting a tree-change. With four large bedrooms and separate study, media and activity rooms, this acreage home design has it all. The open-plan kitchen and living area leads onto a large alfresco area at the rear of the home, making it perfect for entertaining. Featuring a large walk-in robe and designer ensuite, the master suite is private and located in its own wing of the home. This house plan has room for everybody, making it the perfect family home.

 


Floor-plan options for Retreat

Retreat 303
Bed 4
Bath 2
Living 3
Car 2
Home Design: Retreat
Building Type: Single Storey
Floor Area: 306.56m2
House Width: 25.8m
House Length: 17.2m

Display Homes & 3D Tours for Retreat by Hallmark Homes

Loading...
Retreat by Hallmark Homes