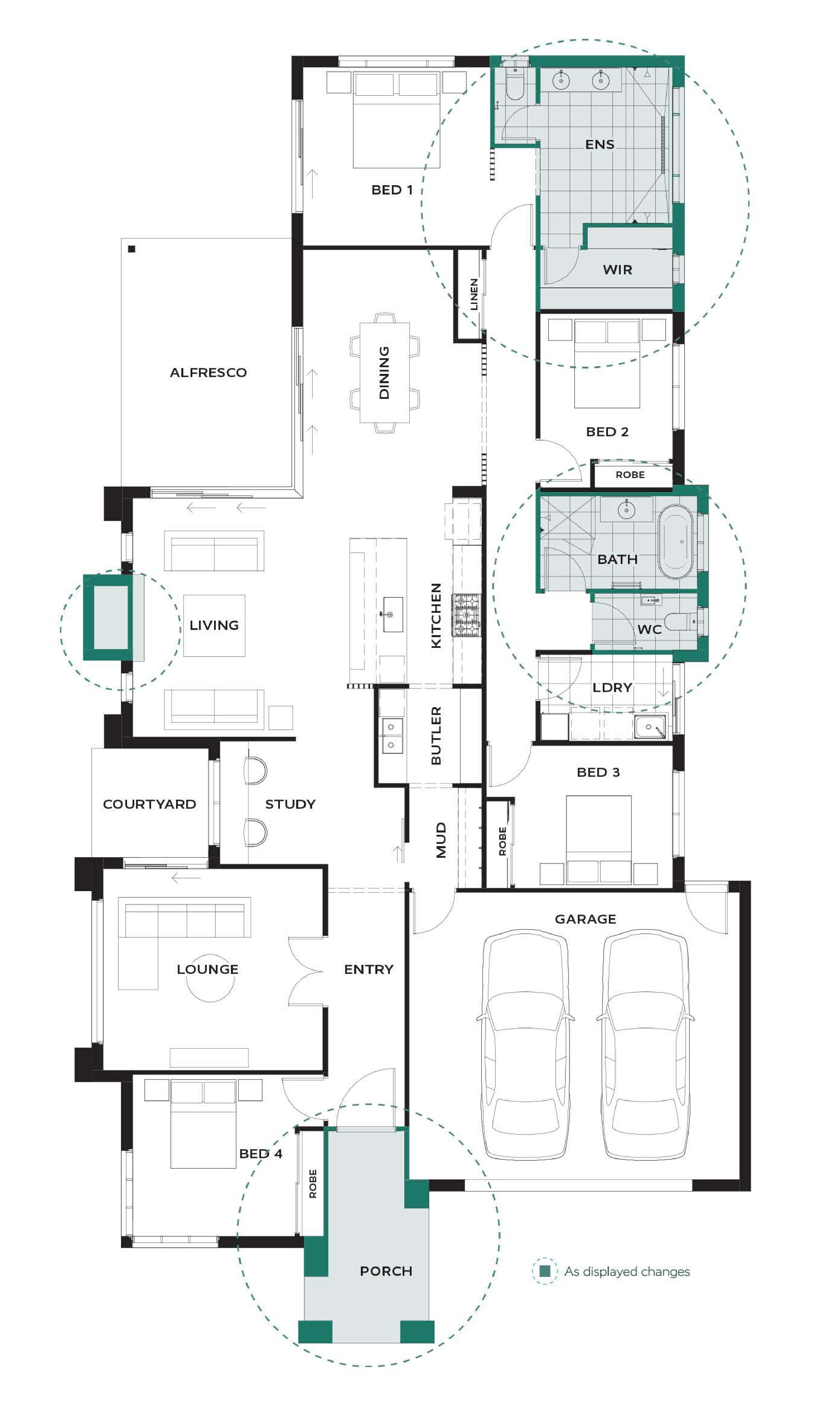
DISPLAY HOMELetswork 292S | @ Whiterock Estate - White Rock Home Designs by Hashtag Custom Builds Letswork 292S by Hashtag Custom Builds HOME DESIGN Latest Pricing & Inclusions Floor-plan options for Letswork 292S Letswork 292S 4 2 2 Builder: Hashtag Custom Builds Home Design: Letswork 292S Building Type: Single Storey Floor Area: 292m2 Latest Pricing & Inclusions Display Homes & 3D Tours for Letswork 292S by Hashtag Custom Builds Loading... Letswork 292S By Hashtag Custom BuildsWhiterock Estate - White Rock Whiterock Estate - White Rock