() Logo

Letswork 324 by Hashtag Custom Builds


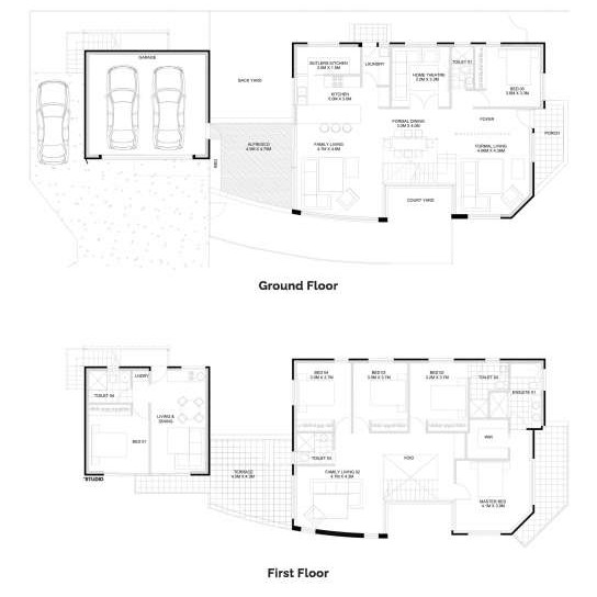
Floor-plan options for Letswork 324

Letswork 324
Bed 5
Bath 4
Car 3
Home Design: Letswork 324
Building Type: Double Storey
Floor Area: 324.12m2

Display Homes & 3D Tours for Letswork 324 by Hashtag Custom Builds

Loading...
Letswork 324 by Hashtag Custom Builds