Tyla by Homebuyers Centre WA

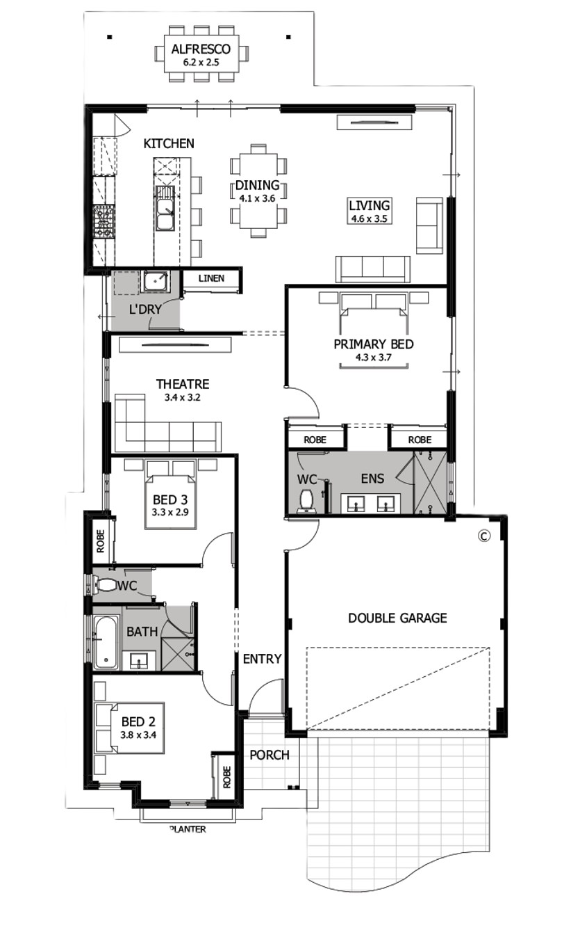
Explore the Tyla, everything a first homebuyer could want and more! A large kitchen, living & dining area at the rear of the home makes in door/outdoor living a breeze. Your primary bedroom located at the heart of the home, creating a perfect oasis for those lazy days in bed.

Plus with 2 extra bedrooms & a theatre, there’s plenty of space to entertain your friends and fam all year round!


Floor-plan options for Tyla

Tyla
Bed 3
Bath 2
Car 2
Home Design: Tyla
Building Type: Single Storey
Floor Area: 199.4m2
Min Block Width: 12.5m
Tyla by Homebuyers Centre WA