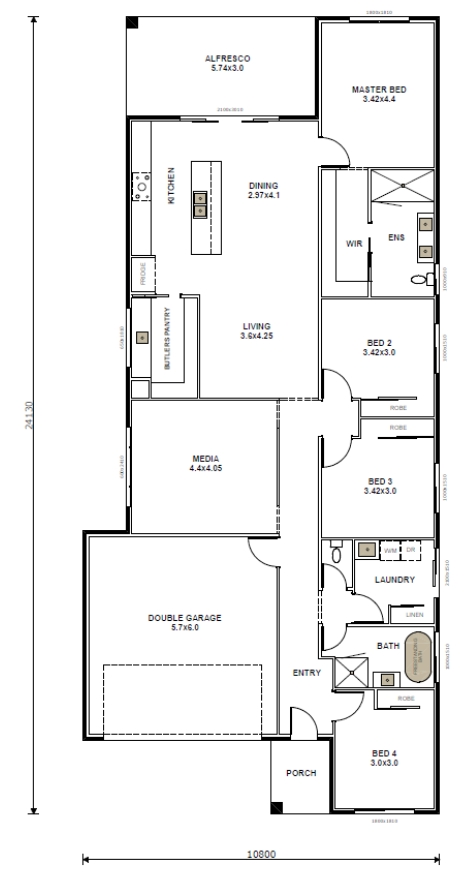
DISPLAY HOME Hamilton | @ North Harbour Estate - Burpengary East Home Designs by Homes By CMA Hamilton by Homes By CMA HOME DESIGN Latest Pricing & Inclusions Floor-plan options for Hamilton Hamilton 4 2 2 2 Builder: Homes By CMA Home Design: Hamilton Building Type: Single Storey Floor Area: 227.64m2 House Width: 10.8m House Length: 24.13m Latest Pricing & Inclusions Display Homes & 3D Tours for Hamilton by Homes By CMA Loading... Hamilton By Homes By CMA North Harbour Estate - Burpengary East North Harbour Estate - Burpengary East