Ruby by Hotondo Homes
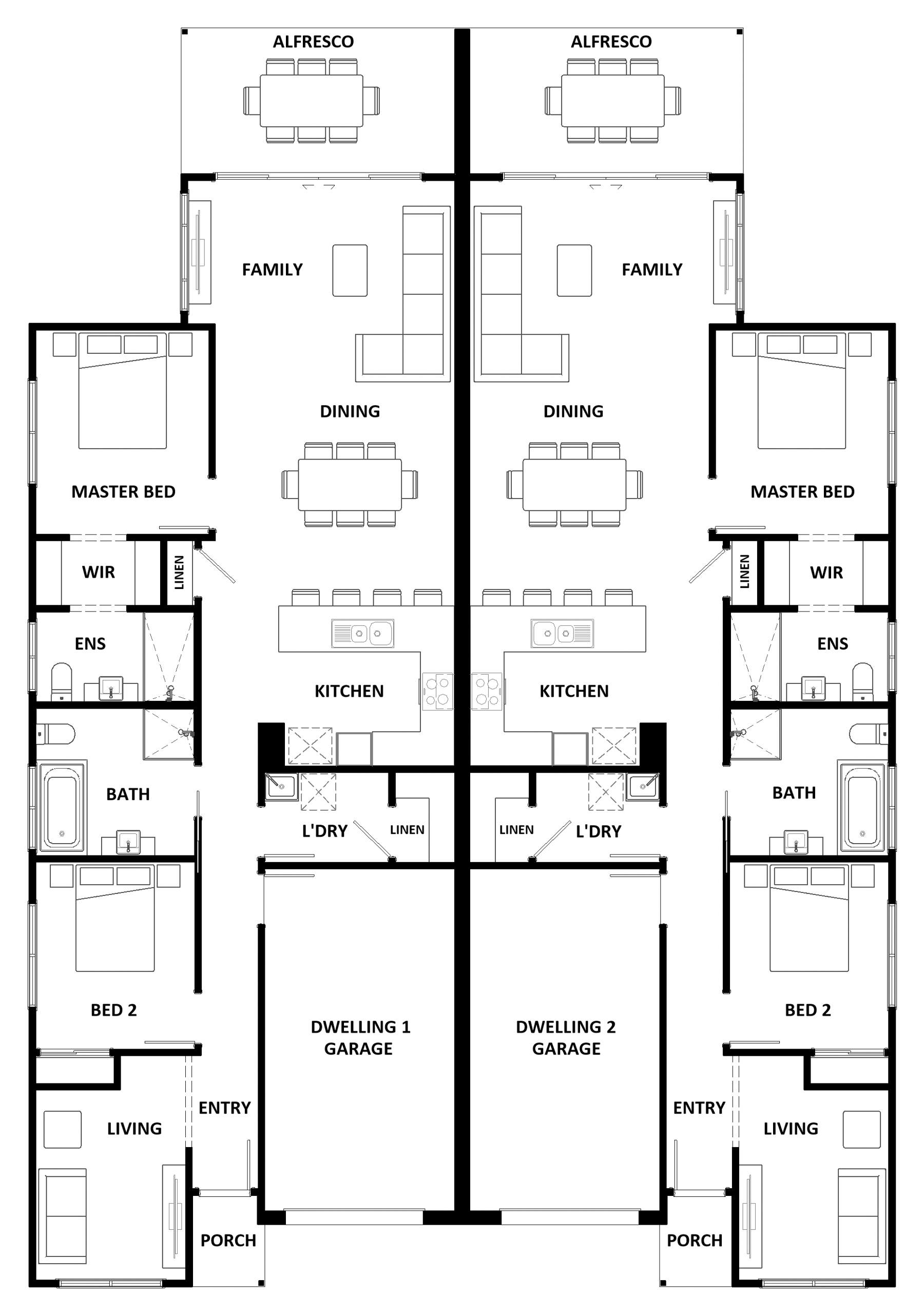
The Ruby 298 is an innovative duplex design, which cleverly incorporates luxury features into a compact mirrored floor plan. Each residence features a single garage, two bedrooms and two living areas. Step inside and you are welcomed into the first living room, providing a quiet space secluded from the central living hub. Down the hall, you’ll find the first of two bedrooms, central family bathroom and laundry. At the rear of the home, the master bedroom features a unique walk-through robe and private ensuite. The kitchen, dining and family area are combined to create one continuous space that flows naturally onto the alfresco, where you can enjoy the sun and watch the kids play. The Ruby 298 is thoughtfully designed to maximise living space and get the most out of your block.

4