Nevada by Hudson Ridge Builders

DISPLAY HOME

Balanced design with privacy

Nevada is the perfect floor plan for those seeking a balanced, functional design with a sense of privacy. With its beautiful light-filled kitchen/dining area opening to a generous courtyard, this design naturally creates a centralised space for everyone to gather. Delight in entertaining, with plenty of rooms to retreat
at either end of the house.


Floor-plan options for Nevada

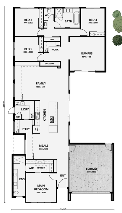
Nevada 28
Bed 4
Bath 2
Living 2
Car 2
Home Design: Nevada
Building Type: Single Storey
Floor Area: 258.14m2
House Width: 13m
House Length: 24.81m
Min Block Width: 14m
Min Block Depth: 32m
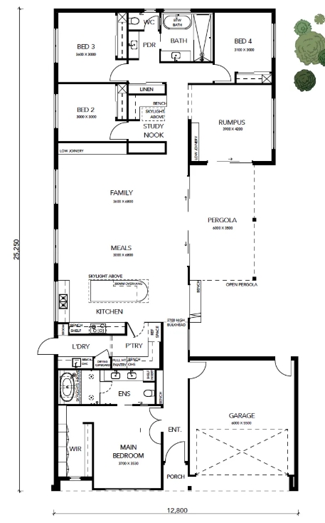
Nevada 27
Bed 4
Bath 2
Living 2
Car 2
Home Design: Nevada
Building Type: Single Storey
Floor Area: 251.31m2
House Width: 12.8m
House Length: 25.25m
Min Block Width: 14m
Min Block Depth: 32m

Display Homes & 3D Tours for Nevada by Hudson Ridge Builders

Loading...
Nevada by Hudson Ridge Builders