Paris by Infinite Homes

DISPLAY HOME

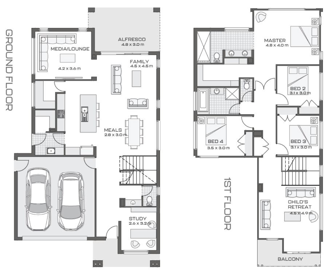
[ The Paris] A spacious family home design featuring four bedrooms, two bathrooms, and a double garage.

On the ground floor, you'll find a versatile study, perfect for working from home or as a quiet retreat. Additionally, there's a convenient powder room for guests, along with a modern kitchen, spacious lounge/media room, and a dining area that provides easy access to the alfresco space for year round entertaining.

 

Upstairs, you’ll find the superior master suite, complete with a walk-in robe and ensuite with his and hers vanity. Three additional bedrooms offer plenty of space for family or guests, while a main bathroom ensures practicality. Plus, there's a retreat area, providing a cozy spot for relaxation or entertainment.


Floor-plan options for Paris

Paris
Bed 4
Bath 2.5
Living 2
Car 2
Home Design: Paris
Building Type: Double Storey
Floor Area: 312.4m2
House Width: 10.8m
House Length: 19.3m

Display Homes & 3D Tours for Paris by Infinite Homes

Loading...
Paris by Infinite Homes