Barossa by JG King Homes

DISPLAY HOME

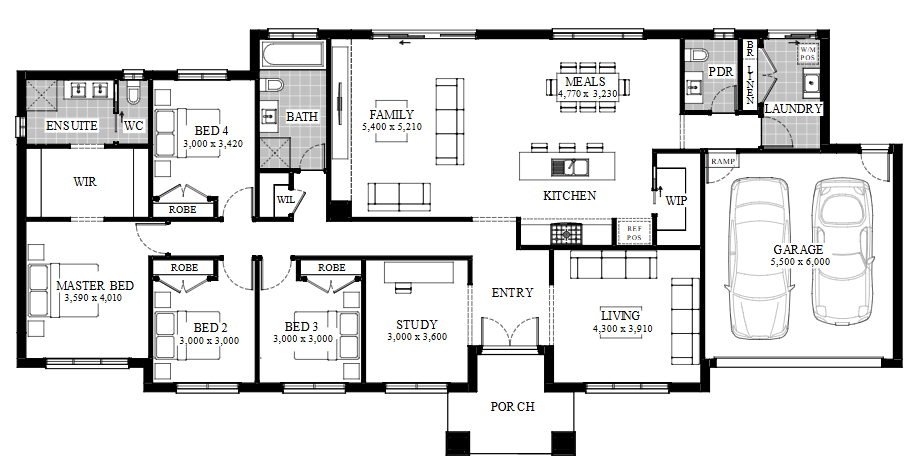
The Barossa plans are sophisticated, well-proportioned homes offering stylish spaces to embrace and enjoy. The open plan living design incorporates a lavish family and meals area, complimented by a gourmet kitchen and walk-in pantry. An additional living room is situated at the front of the home ensuring plenty of space to grow and flourish


Floor-plan options for Barossa

Barossa 27
Bed 4
Bath 2
Living 2
Car 2
Home Design: Barossa
Building Type: Single Storey
Floor Area: 254.7m2
House Width: 25.69m
House Length: 12.3m
Min Block Width: 28m
Min Block Depth: 18m

Display Homes & 3D Tours for Barossa by JG King Homes

Loading...

More House and Land Packages by JG King Homes (Home Builder)

Barossa by JG King Homes