Carrington by JG King Homes

DISPLAY HOME

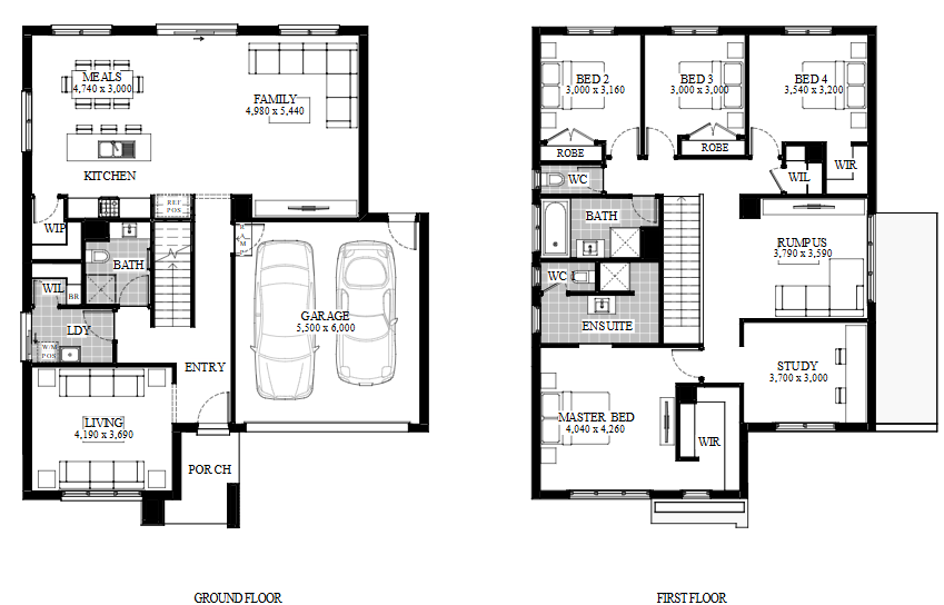
The Carrington packs a lot of punch for its size. This smart and stylish double-storey home is designed to make the most of smaller blocks, featuring 4 spacious bedrooms and 3 versatile living areas. This home offers exceptional functionality in a compact footprint. To add to that, you have the flexibility to make this home into a 5 bedroom or 6 bedroom home too. Perfect for the modern families, the Carrington prides itself on maximising living space without compromising on style. The design is Small Lot Housing Code (SLHC) compliant, eliminating the need for a planning permit application saving you time and money, making for a smooth building process. It also aligns with the Single Home Code recently introduced by the Victorian Government that streamlines approvals for single homes and small second dwellings on lots under 300 square metres - getting homes on smaller land lots built sooner.


Floor-plan options for Carrington

Carrington 30
Bed 4
Bath 3
Living 3
Car 2
Home Design: Carrington
Building Type: Double Storey
Floor Area: 282.46m2
House Width: 12m
House Length: 14.82m
Min Block Width: 14m
Min Block Depth: 21m

Display Homes & 3D Tours for Carrington by JG King Homes

Loading...

More House and Land Packages by JG King Homes (Home Builder)

Carrington by JG King Homes