Caroline by Jury Homes

DISPLAY HOME

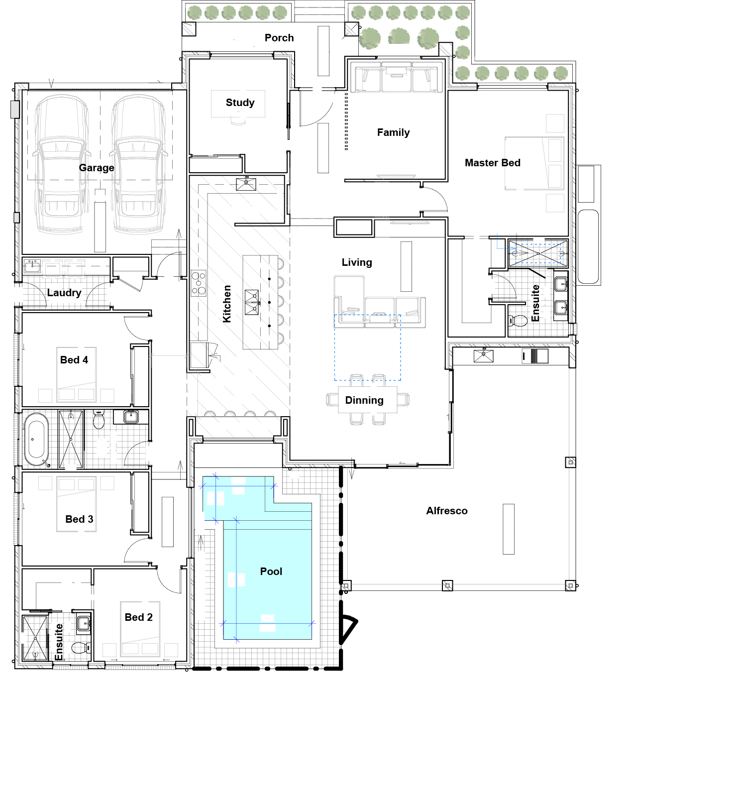
Step into the Caroline, a stunning new display home by Jury Homes that redefines contemporary family living. Designed with lifestyle and luxury in mind, this expansive single-level residence blends open-plan ease with purposeful zoning across four generous bedrooms, multiple living areas, and seamless indoor-outdoor flow. Featuring four bedrooms, including two with ensuites, and multiple living zones including a study, family lounge, and open-plan kitchen, dining and living area, this home balances functionality with style. The heart of the home flows seamlessly to a stunning alfresco and pool area, perfect for entertaining or relaxing. The Caroline is a true celebration of lifestyle and space.

 


Floor-plan options for Caroline

Caroline
Bed 4
Bath 3
Car 2
Builder: Jury Homes
Home Design: Caroline
Building Type: Single Storey
Floor Area: 404.58m2

Display Homes & 3D Tours for Caroline by Jury Homes

Loading...
Caroline by Jury Homes