Aristo by Kaplan Homes

DISPLAY HOME

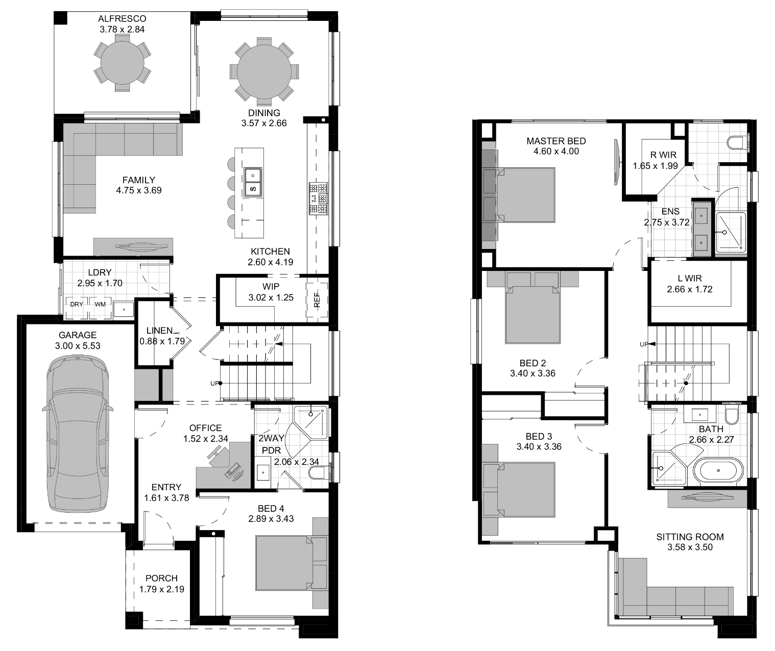
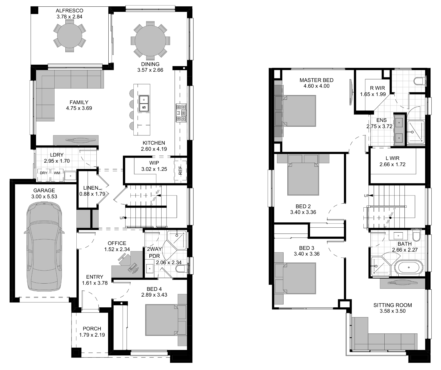
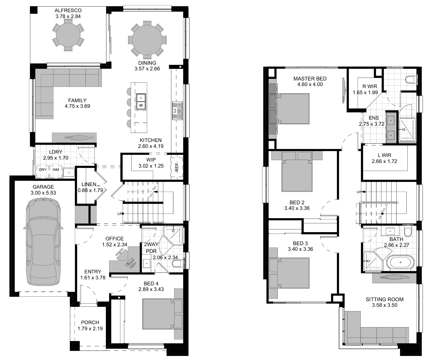
The Aristo 34 Legacy is a beautifully appointed 4-bedroom, 5.5-bathroom home where every bedroom boasts its own ensuite — including double ensuites in the master retreat. With three generous living areas, a home office, and a gourmet kitchen with butler’s pantry, this design balances function and flair. Enjoy seamless indoor-outdoor living with an alfresco and front balcony that complete this statement of comfort and convenience.

 


Floor-plan options for Aristo

Aristo 34 Legacy
Bed 4
Bath 4
Car 2
Home Design: Aristo
Building Type: Double Storey
Floor Area: 320.32m2
House Width: 10.4m
House Length: 18.5m
Aristo 28
Bed 4
Bath 2.5
Car 1
Home Design: Aristo
Building Type: Double Storey
Floor Area: 260.90m2
House Width: 7.83m
House Length: 18.5m
Min Block Width: 10m
Min Block Depth: 27m
Aristo 34
Bed 4
Bath 3
Car 1
Home Design: Aristo
Building Type: Double Storey
Floor Area: 235.81m2
House Width: 8.87m
House Length: 17.36m
Min Block Width: 10m
Min Block Depth: 23m

Display Homes & 3D Tours for Aristo by Kaplan Homes

Loading...

More House and Land Packages by Kaplan Homes (Home Builder)

Bed  5 Bath  3 Car  2
Suburb: Orchard Hills NSW 2748
Land Size: 470.00m²
House & Land Package in Orchard Hills North
A brand new masterplanned community close to transport, shops and schools, Orchard Hills North provides the opportunity enjoy all the benefits of urban convenience in a beautiful setting.

Set among rolling hills with panoramic views to the Blue Mountains, OHN will include a new village centre with shops and a proposed primary school as well as sporting fields, parkland and waterways. In addition, the new Metro station at Orchard Hills is 2km down the road and the new Western Sydney airport is just 14km away.

The Aristo 35 by Kaplan Homes on Lot 3100 is a grand family home with a spacious and flowing floorplan for a large family. With 5 bedrooms, 3.5 bathrooms and multiple living areas, there is ample accommodation and guests are also well catered for. Great range of quality inclusions:

• 6.6kW solar power package.
• EV charging provision to garage.
• Concrete Colortop driveway up to garage.
• 40mm stone benchtops to kitchen.
• Glass kitchen splashback.
• Seamless undermount kitchen sink.
• Full height tiles to bathroom walls.
• Hilton glass frameless shower screens.
• Porcelain 600mm tiles to main floors.
• Valentino glass staircase with timber post and rail (2 storey homes).
• 2.7m high ceilings to ground floor.
• LED lighting throughout entire home
• Cozy-Life electric fireplace.
• Actron ducted air conditioning.
• High gloss polyurethane kitchen.
• Westinghouse 900mm jumbo size cooker and canopy hood
• In-wall toilet cistern and intelligent washer toilet.
• Freestanding feature bathtub.
• Wall-hung Noosa vanities with stone benches.
• Flyscreens to all windows.
• Touchscreen modern alarm system.
• Plus much much more!
Price: $1,739,900
Aristo by Kaplan Homes