Montana by Kialla Homes

DISPLAY HOME

Introducing the stunning new Montana display home, where modern elegance meets energy-efficient design.

This thoughtfully crafted home features raked ceilings that create an airy, open ambiance, while the feature fireplace adds a cozy touch to the living space.

With large bedrooms, each equipped with walk-in robes, and a spacious laundry designed for convenience, the Montana is perfect for growing families.

Kids will love the dedicated retreat, and a separate study provides the ideal space for work or creativity. Experience the perfect blend of luxury, functionality, and sustainability with the Montana display home, offering so much more for your family’s lifestyle.


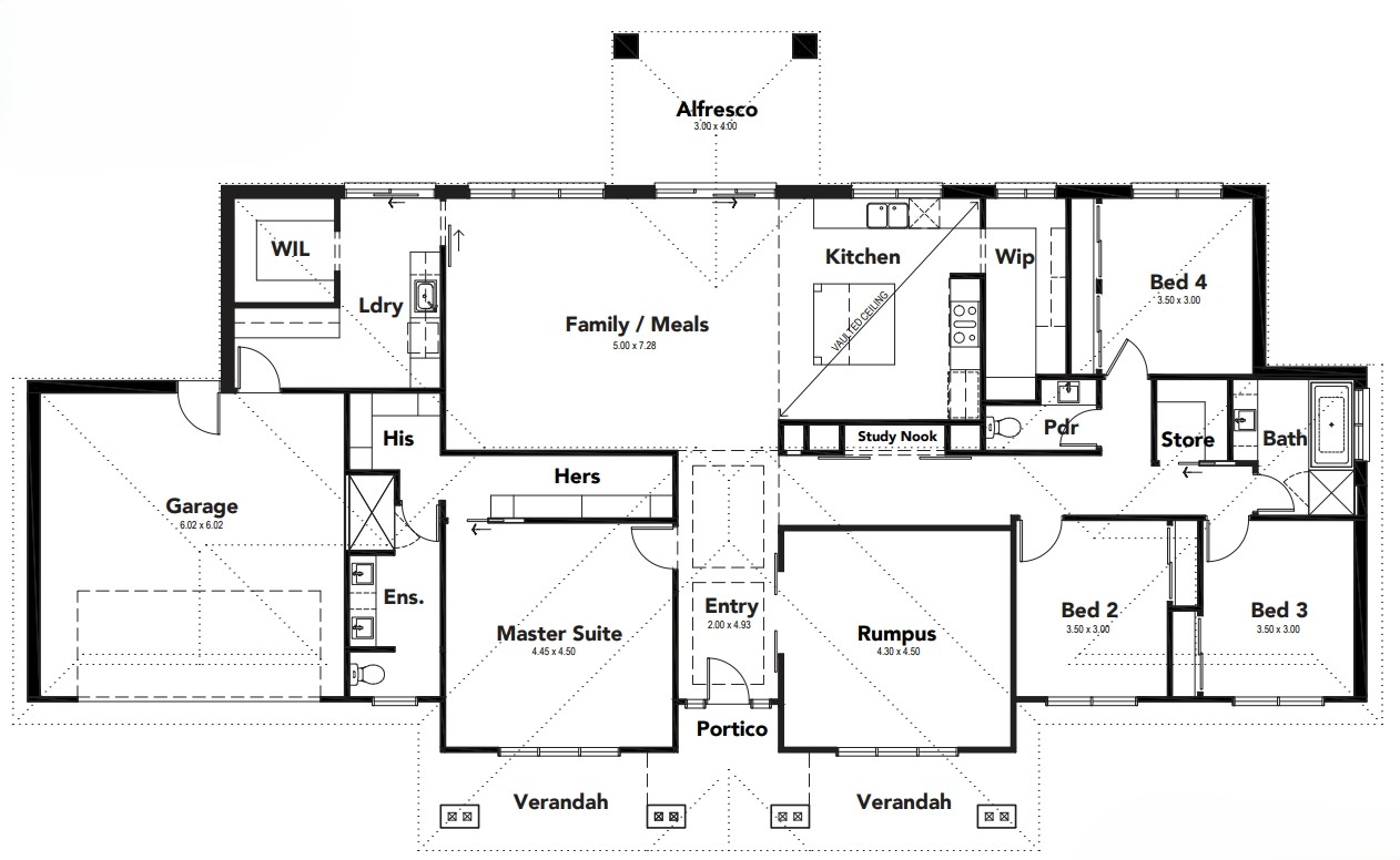
Floor-plan options for Montana

Montana 310
Bed 4
Bath 2
Living 3
Car 2
Home Design: Montana
Building Type: Single Storey
Floor Area: 288.5m2

Display Homes & 3D Tours for Montana by Kialla Homes

Loading...
Montana by Kialla Homes