Savannah by Kialla Homes

DISPLAY HOME

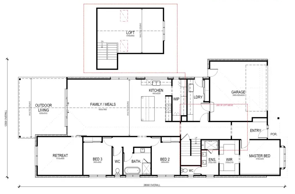
Blending heritage character with modern Australian design, the Savannah showcases Kialla Homes’ signature craftsmanship from the moment you arrive. Decorative gable fretwork, weatherboard cladding and elegant verandah detailing set the tone for a home that feels both timeless and welcoming. Upon entry, the wide hallway’s feature V-groove wall panelling and decorative fretwork arches create a refined first impression. These elements celebrate the charm of early period architecture while delivering the practicality families expect today.

At the heart of the home, a soaring cathedral ceiling frames the Family and Meals area, filling the space with natural light and highlighting the warmth of solid timber flooring throughout the main living zones. The kitchen is thoughtfully positioned and includes a generous walk in pantry, modern appliances and a seamless connection to the outdoor living area. This layout supports both everyday living and relaxed entertaining. On the ground floor, three well appointed bedrooms, a private master suite and multiple flexible living spaces ensure the home comfortably supports the needs of growing families.

The loft is a defining feature of the design and is accessed via a beautifully detailed staircase. Overlooking the main living zone, this spacious retreat offers outstanding versatility and can be used as a teen lounge, guest accommodation, home office or creative studio. The loft adds character, functionality and a sense of occasion that is rarely found in contemporary homes. The Savannah Loft is a distinctive design that blends classic styling with contemporary comfort, crafted for families who love warmth, personality and thoughtfully considered living spaces.
 


Floor-plan options for Savannah

Savannah 356
Bed 3
Bath 2
Car 3
Home Design: Savannah
Building Type: Single Storey
Floor Area: 330.83m2
House Width: 12.5m
House Length: 28.06m

Display Homes & 3D Tours for Savannah by Kialla Homes

Loading...
Savannah by Kialla Homes