Brooklyn with granny flat by King Homes NSW

DISPLAY HOME

Introducing the Brooklyn Dual, a sophisticated double-storey home with an attached granny flat from our collection at King Homes NSW.

The Brooklyn Dual by King Homes NSW – a sophisticated double-storey home with an attached granny flat, designed to meet the needs of modern, multi-generational families.
With a flexible floorplan that delivers comfort, space and privacy, this home is perfect for those looking to live together, yet independently.

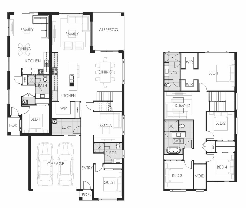
Why you’ll love the Brooklyn Dual:

Spacious Main Home: Enjoy multiple living zones including an open-plan family and dining area, a dedicated media room, and an upstairs leisure room – ideal for movie nights, family time or quiet retreats.

Well-Appointed Bedrooms: The main home features four generously sized bedrooms, including a main suite with a walk-in robe and stylish ensuite. Additional bedrooms come with built-in robes, offering practical storage for the whole family.

Functional Kitchen: A contemporary kitchen sits at the heart of the home with a walk-in pantry, ample prep space and a seamless connection to living and dining areas, making everyday meals and entertaining effortless.

Attached Granny Flat: The fully self-contained one-bedroom granny flat includes its own kitchen, living space and bathroom. Ideal for guests, extended family, or even as a home office or rental income opportunity.

Outdoor Connection: The large alfresco is ideal for summer barbecues, weekend brunches, or relaxing in the fresh air.


Floor-plan options for Brooklyn with granny flat

Brooklyn Dual
Bed 6
Bath 4
Car 2
Building Type: Double Storey
Floor Area: 350.98m2
House Width: 12.9m
House Length: 20.22m

Display Homes & 3D Tours for Brooklyn with granny flat by King Homes NSW

Loading...
Brooklyn with granny flat by King Homes NSW