Cezanne Alfresco by Liberty Homes

DISPLAY HOME

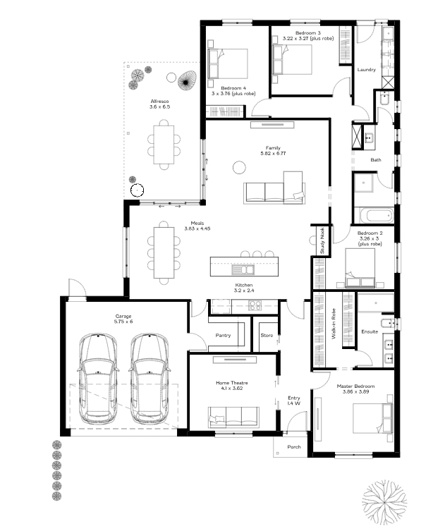
Step into this contemporary designed home, perfect for family living. With two spacious living areas, four bedrooms, two bathrooms, and a double garage, the Cezanne Alfresco at Aston Hills, Mount Barker offers the ultimate sophisticated living experience.


Floor-plan options for Cezanne Alfresco

Cezanne Alfresco
Bed 4
Bath 2
Living 2
Car 2
Home Design: Cezanne Alfresco
Building Type: Single Storey

Display Homes & 3D Tours for Cezanne Alfresco by Liberty Homes

Loading...
Cezanne Alfresco by Liberty Homes