Hockney Alfresco by Liberty Homes

DISPLAY HOME

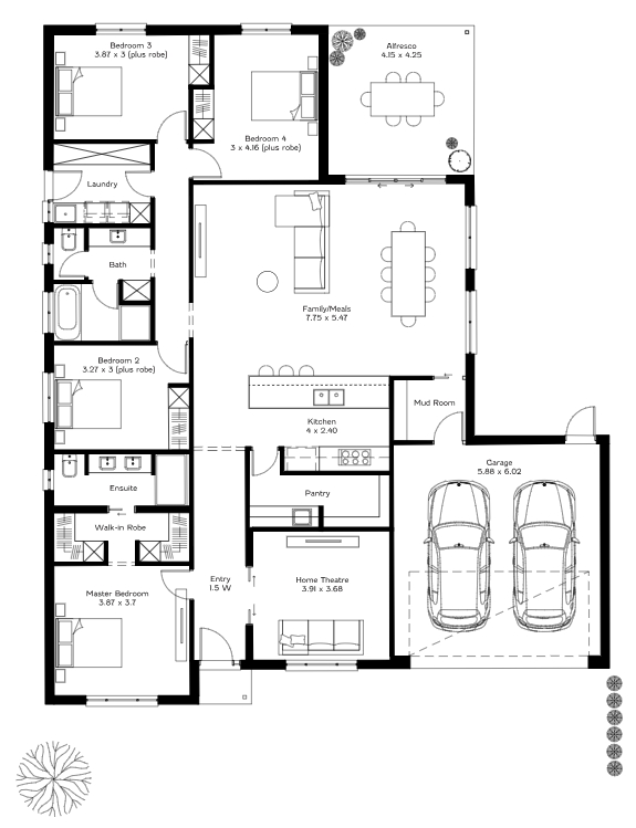
Step into bliss and envision your next family celebration by visiting our Hockney Alfresco display home at Two Wells. Discover the generous 16 metre frontage of this 4-bed, 2-bath home, featuring the ideal alfresco entertainment blank canvas perfect for your next gathering or quiet night in with the family.

 


Floor-plan options for Hockney Alfresco

Hockney Alfresco
Bed 4
Bath 2
Living 2
Car 2
Home Design: Hockney Alfresco
Building Type: Single Storey
Min Block Width: 16m

Display Homes & 3D Tours for Hockney Alfresco by Liberty Homes

Loading...
Hockney Alfresco by Liberty Homes