Eden by Lily Homes

DISPLAY HOME

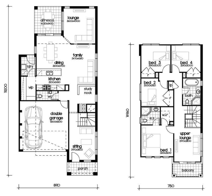
Set across a dual level floor plan, this well designed home makes the most of all space, providing functional areas to be used and enjoyed by the whole family.

It’s also a design that would suit those after a more traditional floor plan with a lounge room being separate from the open area containing the kitchen, dining and family rooms.

Designed for functionality as well as beauty, the kitchen features a walk-in pantry that you’ll absolutely love. An alfresco off the dining room also allows for extra entertaining space.

The functionality continues upstairs with all space being utilised. Three large bedrooms feature built-in wardrobes and the master bedroom has a great walk-in wardrobe and ensuite. An additional lounge area outside the main bedroom provides another space to relax and nicely opens onto a balcony so you can feel the fresh air from upstairs as well.


Floor-plan options for Eden

Eden
Bed 4
Bath 2
Car 2
Builder: Lily Homes
Home Design: Eden
Building Type: Double Storey
Floor Area: 241.5m2
House Width: 8.9m
House Length: 19.2m

Display Homes & 3D Tours for Eden by Lily Homes

Loading...