Portland by Lily Homes
DISPLAY HOME
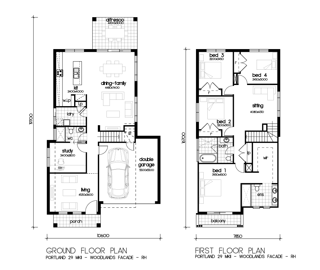
A compact design with all the essentials in a well laid out floor plan, the Portland is perfect for a growing family.
The home has four bedroom, with a master bedroom featuring a walk-in wardrobe and double vanity ensuite. The master bedroom also opens onto a balcony. In addition, the first floor has an upper lounge area so there are plenty of space for family and friends to gather and relax.
Display Homes & 3D Tours for Portland by Lily Homes
Loading...
4
