
Fairview by Masterton Homes
DISPLAY HOME
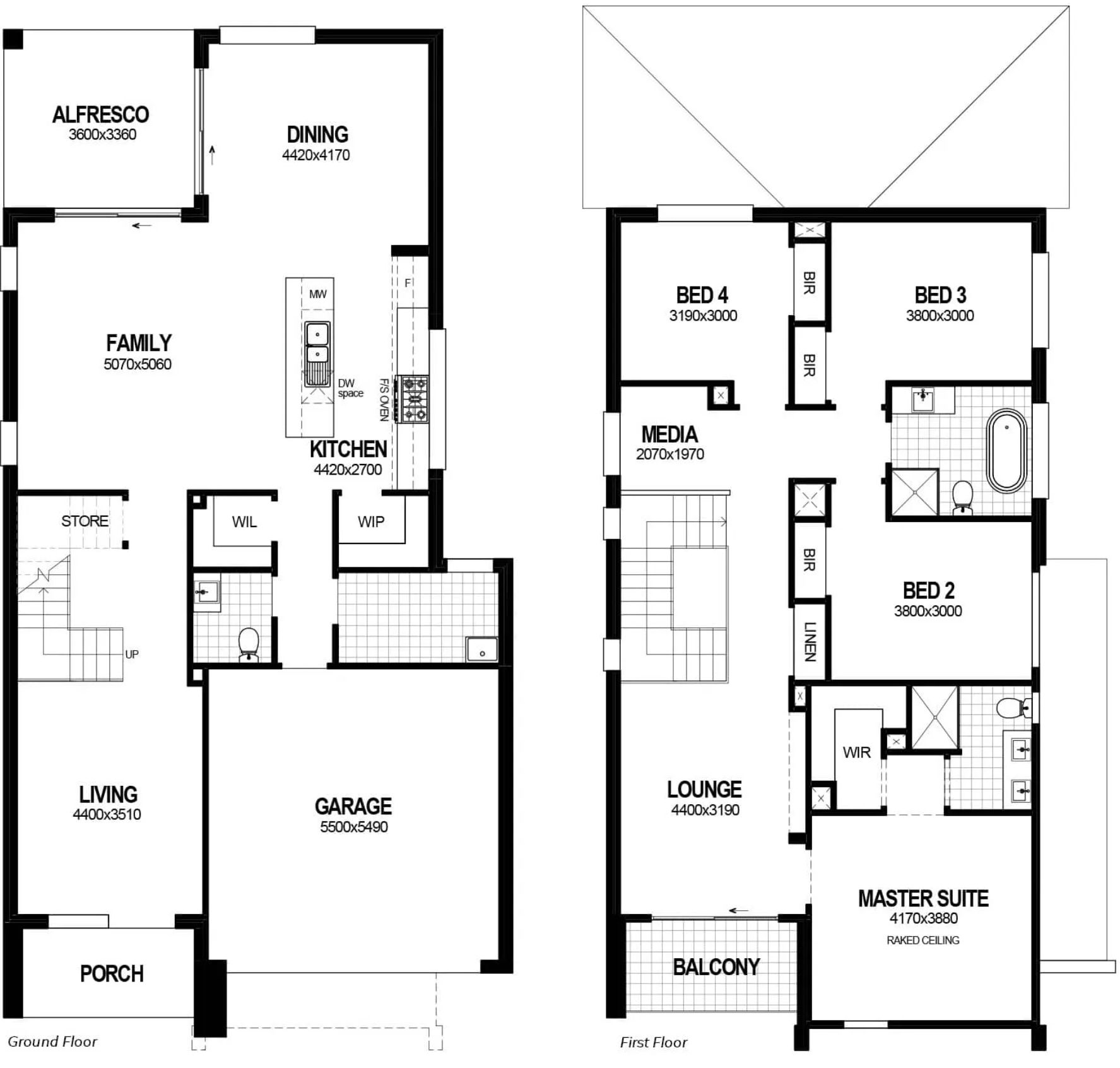
The Fairview invites the outdoors in, with sliding doors that transition the family, dining and alfresco areas seamlessly. Upgrade to stacker doors for that extra wow factor!
Enjoy spending time in the light-filled kitchen, with plenty of bench space and storage for the master chefs and entertainers alike. Make light work of the housework with a handy service area off the kitchen, conveniently grouping together the laundry, walk-in-linen, powder room and garage.
Sitting pretty at just 9.5m wide, this space-saving family-friendly design suits a 12m frontage to perfection. Yet
it doesn’t compromise on privacy, striking the perfect balance with three separate living areas, as well as an upstairs media area.
The upgraded Lakeside façade features a raked ceiling to add another level of elegance to the master suite.
Display Homes & 3D Tours for Fairview by Masterton Homes
Loading...
4