
Orion by Masterton Homes
THE ORION – CURVED TO IMPRESS. DESIGNED TO FIT.
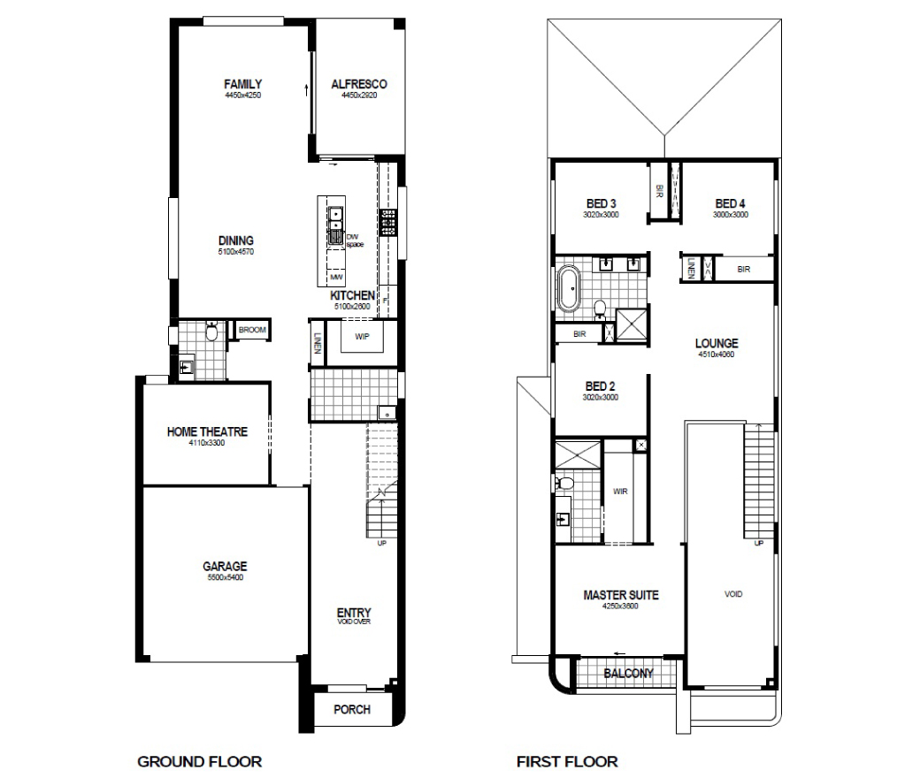
Introducing the all-new ORION – a bold double storey home that redefines modern living on a compact 10m-wide lot. With its architectural curves, soaring ceilings, and clever layout, the ORION proves you don’t need a big block to make a big statement.
From the moment you step inside, you’re greeted by a dramatic double-height void that floods the entry with natural light and a sense of grandeur. The curves continue throughout the home – from the elegant archways and flowing feature walls, to the sculptural curved island bench in the designer kitchen.
Designed with versatility in mind, the downstairs home theatre offers the option to convert into a guest bedroom by simply adding a shower to the powder room – perfect for visiting friends or extended family.
At the heart of the home, a grand 3500mm raised ceiling spans across the family and dining zone, enhanced by stacker doors that open onto the alfresco – which mirrors the same impressive height, creating one continuous indoor-outdoor entertainer’s dream. The upgraded walk-in pantry steps up to a full butler’s pantry, offering both form and function for the modern host.
Upstairs, a generous lounge overlooks the statement entry void, creating a stunning space to unwind. The luxurious master suite boasts access to a private balcony, while the main bathroom features dual vanities for added convenience and a luxe hotel feel.
Completed with the sleek Cove façade, the ORION’s street presence is equally unforgettable – featuring curved architectural detailing and Decowood timber panelling across the façade and garage for a striking, contemporary finish.
Ready to make a statement? The ORION is your next bold move. Speak to a Masterton New Home Consultant about a Free Site Inspection today.

4