Sanctuary by Masterton Homes

DISPLAY HOME

True to its name, this home will feel like a sanctuary, away from the chaos of your everyday life!

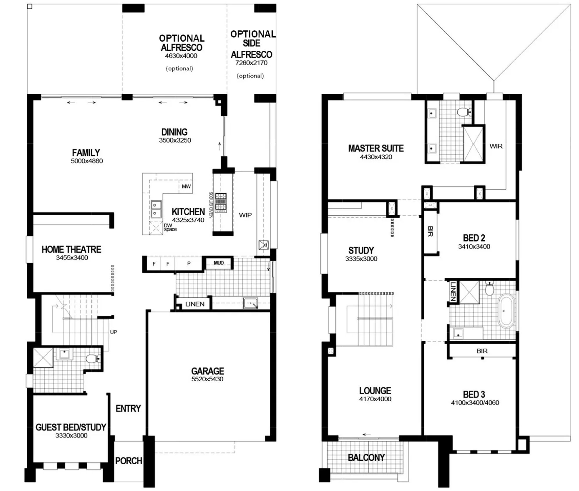
Living areas are always the most used spaces in a home and the Sanctuary's layout has you covered.  The sun soaked, open-plan family room is surrounded by huge sliding doors that open onto optional alfresco space, making it the perfect place to sit back and relax after a hard day at the office and /or wrangling kids.  The kitchen is dreamy with an island bench and a luxe walk-in pantry.  Take it to the next level by converting this space into a butler's pantry with on point appliances.

Upstairs you'll find an opulent Master Suite, large bedrooms and tonnes of storage space.  The flexible floorplan means extra living rooms can be used for whatever purpose you need including a yoga studio, prayer room or home office.

 


Floor-plan options for Sanctuary

Sanctuary Premier
Bed 4
Bath 3
Living 2
Car 2
Home Design: Sanctuary
Building Type: Double Storey
Floor Area: 348.12m2
House Width: 11.15m
House Length: 21.44m
Sanctuary Elite
Bed 5
Bath 3
Living 2
Car 2
Home Design: Sanctuary
Building Type: Double Storey
Floor Area: 353.89m2
House Width: 11.88m
House Length: 18.22m
Sanctuary Exclusive
Bed 5
Bath 3
Living 2
Car 2
Home Design: Sanctuary
Building Type: Double Storey
Floor Area: 320.51m2
House Width: 11.52m
House Length: 17.5m

Display Homes & 3D Tours for Sanctuary by Masterton Homes

Loading...

More House and Land Packages by Masterton Homes (Home Builder)

Bed  4 Bath  2 Car  2
Suburb: Cambewarra NSW 2540
Land Size: 758.00m²
Floor Area: 268.7sq
Stamp Duty Rebate Available On This Package!
This exclusive House & Land Package in the booming location of Badagarang offers the perfect combination of modern living and exceptional value, designed to suit families and investors alike.
For just a $1,000 holding fee, you can secure a beautiful, spacious home and a prime piece of land in a sought-after location.

Whether you’re looking to invest or create the perfect family haven, this package promises a hassle-free path to homeownership.

HOME & LAND PACKAGE INCLUSIONS:
* SOLAR PACKAGE NOW INCLUDED!.
* Fixed price site costs
* REGISTERED LAND. ACCELERATE INTO CONSTRUCTION
* Choose your design and facade (subject to lot design)
* BASIX Package
* Concrete Driveway
* Fujitsu ducted airconditioning
* 2.6m ceiling height to ground floor
* 20mm stone kitchen bench tops
* Quality Omega Appliances
* Free standing bath
* Semi-frameless shower screens
* Choice of 500mm x 500mm tiles or laminate to living, dining, kitchen & entry hallway, carpets to remainder
* Tiled alfresco & porch area
* Colorbond or Monier roof tiles
* And much more from our Evolve Luxury Upgrade Package!

Affordable living never looked so good – the Evolve Collection by Masterton.

Whether you’re investing in your future or looking for a family home to settle into, this offer provides everything you need to create the life you’ve always wanted. Don’t miss out on the opportunity to secure your home with a minimal deposit – contact us today and take the first step toward owning your dream property.

*Terms & Conditions: Images in this flyer depict land, landscaping and decorator items which are not supplied by Masterton and are not included in the price. Finishes to facades may show upgraded finishes which may not be included. Site costs may vary according to site classification, survey and site inspection, site conditions including rock and fill subject to building setback. Prices subject to Statutory Consenting Authority approval and specified conditions, bushfire requirements and acoustic report. Inclusions based on Ultimate Inclusions or Evolve Inclusions package unless otherwise specified. Where any item appears in more than one package or offer then the upgrade of that item will be supplied and no credits will be available. Masterton reserves the right to revise plans, specifications and pricing without notice. Please contact a Sales Consultant for more information. All plans and images are subject to copyright protection. The content is correct at time of printing and supersedes all previous versions published.
Price: From $1,159,000
Sanctuary by Masterton Homes