Sanctuary by McCarthy Homes
DISPLAY HOME
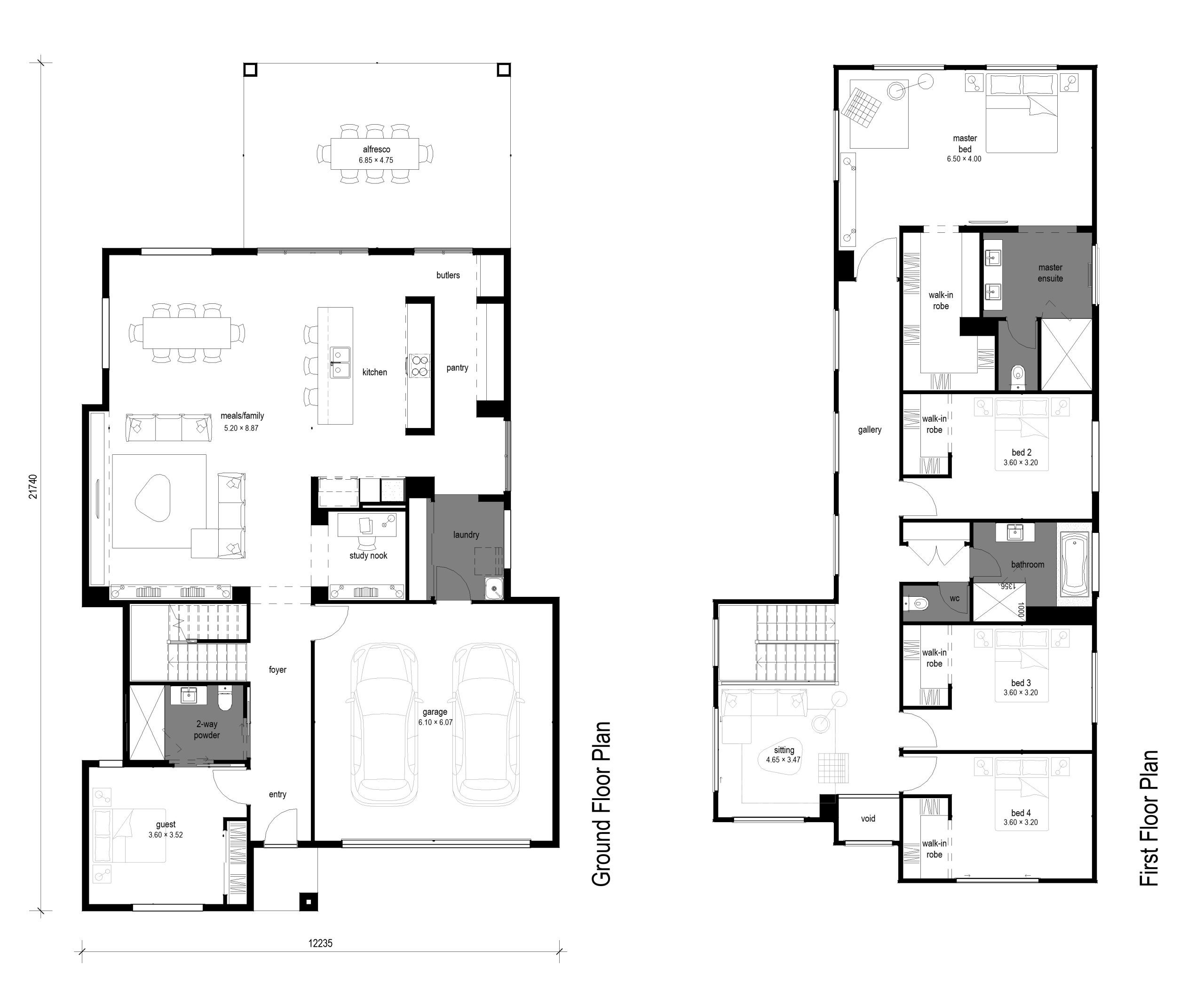
The architectural elements of this classic design are enhanced by an abundance of natural light, through the introduction of oversized external glazing. Possessing 5 spacious bedrooms, the Sanctuary exudes comfort and style.
Display Homes & 3D Tours for Sanctuary by McCarthy Homes
Loading...

5