Grandeur by McDonald Jones Homes

DISPLAY HOME

A luxurious two storey home design

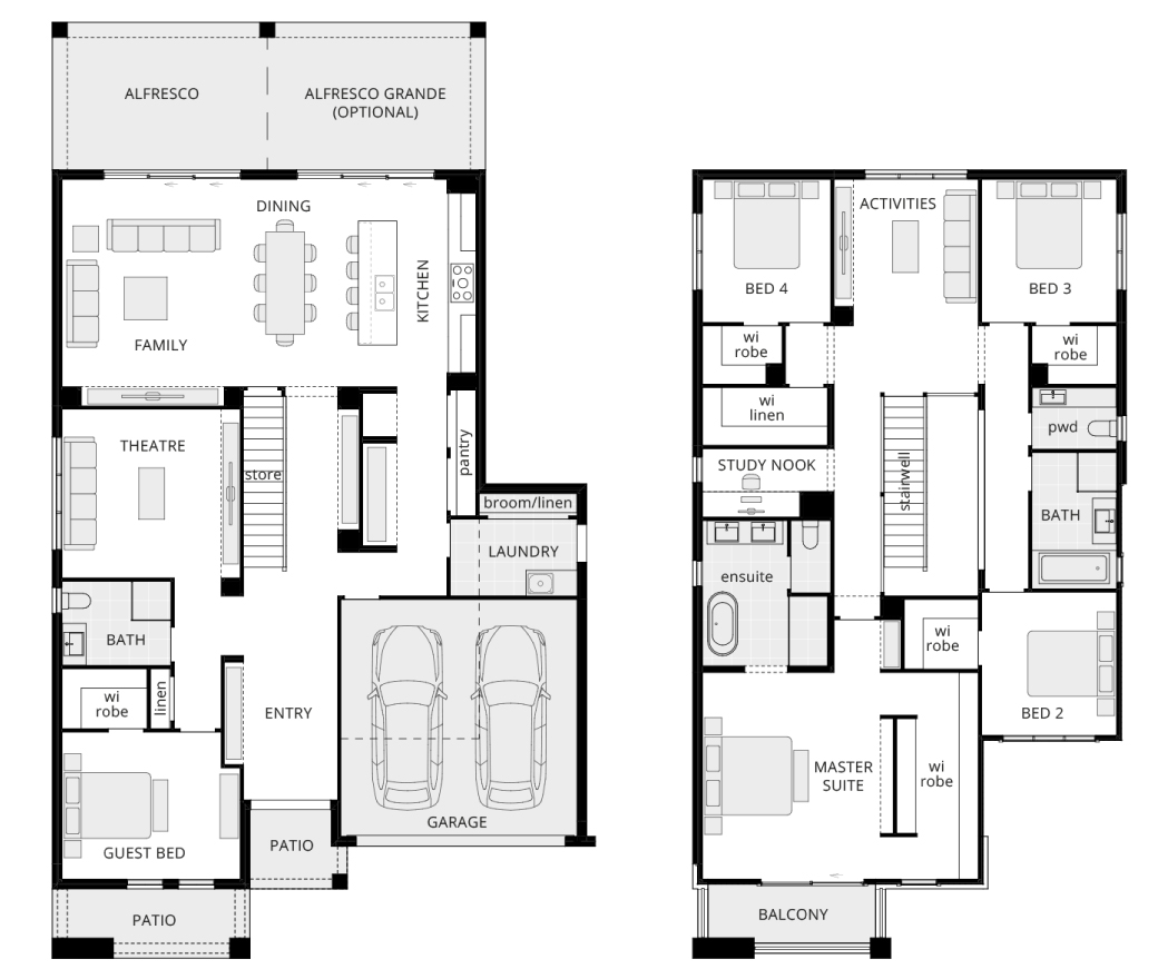
The Grandeur is a magnificent two-storey family home that exudes luxury and elegance. This house design features a central staircase that adds a touch of grandeur to the overall aesthetic. The front entrance boasts a wide hallway leading straight through to the kitchen, creating a striking first impression.

Inside, the Grandeur is a spacious and functional home that offers plenty of room for a growing family. The central staircase leads to an activities space, master bedroom and 3 bedrooms on the second floor, which is flooded with natural light thanks to the large windows. The kitchen features a large walk in pantry and ample storage space, making it the perfect place for cooking and entertaining. There is also a guest bedroom located on the ground floor, providing privacy and flexibility for family members. With its stunning design and functional layout, the Grandeur is the perfect place for families to call home.
 


Floor-plan options for Grandeur

Grandeur 42 One
Bed 5
Bath 35
Living 2
Car 2
Home Design: Grandeur
Building Type: Double Storey
House Width: 13m
House Length: 17.6m
Min Block Width: 16m
Grandeur 39
Bed 5
Bath 3
Car 2
Home Design: Grandeur
Building Type: Double Storey
House Width: 12.51m
House Length: 16.83m
Min Block Width: 15m

Display Homes & 3D Tours for Grandeur by McDonald Jones Homes

Loading...
Grandeur by McDonald Jones Homes