Panorama by McDonald Jones Homes

DISPLAY HOME

Enchanting two storey home design

The Panorama is a stunning home where the flow of life is enhanced and celebrated with seamless spaces for ease and enjoyment every day. You will be pleasantly surprised with the flexibility of the luxurious living spaces, which are smartly designed and perfectly suited for modern compact blocks.

A study or home office, home theatre and an upper-level living make home life effortlessly easy and enjoyable. The sprawling open plan living on the ground floor connects to the dining and gourmet kitchen with uninterrupted views of the backyard, creating a beautiful setting for the entire family to enjoy.

Consideration for flow, natural light and accessibility are shown in the gourmet kitchen design, where convenience and accessibility are optimised, flowing through to the laundry, powder and the other parts of the home. Thoughtful design enhances the upper level to be a haven of peaceful spaces that the entire family will cherish.

The Panorama offers size options, so this beautifully designed home can suit a range of blocks, lifestyles and life stages to realise your dream lifestyle. 
 


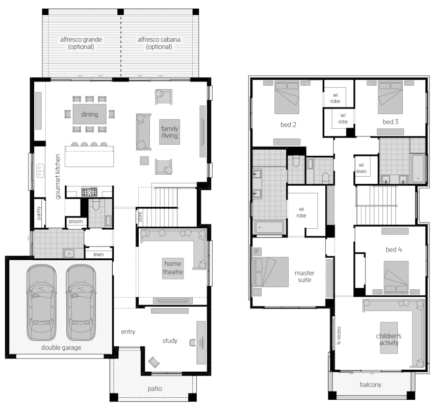
Floor-plan options for Panorama

Panorama 33
Bed 4
Bath 2.5
Living 2
Car 2
Home Design: Panorama
Building Type: Double Storey
House Width: 11.3m
House Length: 19.9m
Min Block Width: 12.5m
Panorama 36
Bed 4
Bath 2
Living 2
Car 2
Home Design: Panorama
Building Type: Double Storey
House Width: 10.8m
House Length: 17.47m
Min Block Width: 12.5m
Panorama 39
Bed 4
Bath 2
Car 2
Home Design: Panorama
Building Type: Double Storey
House Width: 11.95m
House Length: 17.32m
Min Block Width: 14.2m

Display Homes & 3D Tours for Panorama by McDonald Jones Homes

Loading...
Panorama by McDonald Jones Homes