Valiente by McDonald Jones Homes

DISPLAY HOME

A two-storey home that is built for pure enjoyment which maximises space for every member of the family.

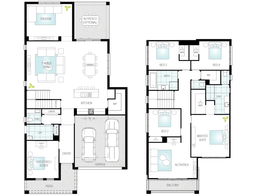
Enjoy every moment of your home life thanks to the range of spaces offered throughout the smartly designed Valiente. A home theatre or guest bedroom and children’s activity deliver a home of pure enjoyment.

The pleasure of hosting family celebrations and quality time with friends will be yours thanks to the gourmet kitchen with a large walk-in pantry and the light-filled open plan living/dining, which flows onto the alfresco.

Retreat to the upper floor, which is dedicated to rest and relaxation. Featuring four well-designed bedrooms, all with built-in robes, and a modern family bathroom with a separate WC and additional storage.

 


Floor-plan options for Valiente

Valiente One
Bed 4
Bath 2.5
Living 2
Car 2
Home Design: Valiente
Building Type: Double Storey
Floor Area: 205m2
House Width: 10.39m
House Length: 19.35m
Min Block Width: 12.5m
Valiente Three
Bed 5
Bath 2
Living 2
Car 2
Home Design: Valiente
Building Type: Double Storey
House Width: 11.23m
House Length: 19.5m
Min Block Width: 14m

Display Homes & 3D Tours for Valiente by McDonald Jones Homes

Loading...
Valiente by McDonald Jones Homes