Denver by Metricon Homes

DISPLAY HOME

Modern country living at its finest

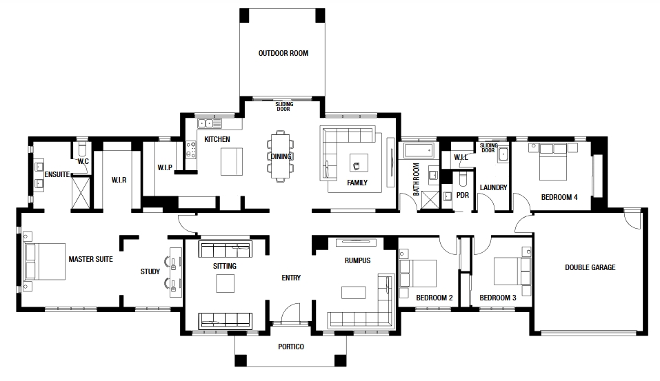
The Denver was created for modern country living to suit a corner or acreage allotment. This home boasts an impressive entry and an open plan area with a centrally located kitchen, dining and family room, perfect for entertaining. Its flexible footprint will suit families that want to live together. Space, the final frontier. Let the Denver take you there.

 


Floor-plan options for Denver

Denver 37
Bed 4
Bath 2.5
Living 3
Car 2
Home Design: Denver
Building Type: Single Storey
Floor Area: 339.03m2
House Width: 31.91m
House Length: 18.11m
Min Block Width: 36m

Display Homes & 3D Tours for Denver by Metricon Homes

Loading...

More House and Land Packages by Metricon Homes (Home Builder)

Bed  4 Bath  2 Car  2
Land Size: 882.00m²
Floor Area: 225sq
More Home for Less
ARCADIA 25, NORDIC FAÇADE, LOT 2126 ACCORD STREET, STRATHFIELDSAYE 3551, IMAGINE ESTATE

If you're an eligible first home buyer, then you can apply for the First Home Owners' Grant, which is $10,000<, to this home and land package. At Metricon, we've helped thousands of first home buyers realise their new home dreams, and we can help you too.
At Metricon, we understand that great design is the sum of many parts, and for over 47 years, our mission has been to create homes where you truly love to live.
From the moment you step inside, you can't help but be impressed by the sleek modern design and wide-open, light-filled spaces of our 7 -Star energy efficient home.




We build beautiful and sustainable designed homes without the architect-designed price, our package includes:
• Lifetime Structural guarantee#
• 7-star energy rating
• Double glazed windows & sliding doors
• PV solar system
• 2550mm Ceilings
• Floor Coverings Throughout
• Ducted Heating & Reverse cycle cooling
• 20mm zenith stone benchtops to kitchen
• 20mm zenith stone benchtops to bathrooms
• 900mm Kitchen Appliances
• Dishwasher
• Driveway (Up to 35m2)
Imagine your ideal lifestyle in a community designed with contemporary homes and convenient amenities.

At Metricon, we aim to provide you with innovative yet practical home designs that are designed to grow with your family's requirements well into the future. Since 1976, our design philosophy has remained the same - to design stunning homes where you'd love to live and which celebrate the diversity of Australian family life.

*Price excludes upgrade items above standard specification such as feature render and bricks, front entrance timber decking, front entry door, brick infills above garage, external lighting, fencing, concrete paths and driveway. Facade Image may also contain items not supplied by Metricon, namely landscaping and planter boxes. Aluminium double glazed windows are subject to specific home design, refer to plans.
Floorplan may not reflect developer guidelines and depicts the base Facade.
Package is correct at time of publication, availability, images, inclusions and prices are subject to change due to circumstances that may affect the price as set out in the building contract (including the land registration date not being met), changes in local, state or federal government laws and developer approval.Land is supplied by developer,land prices and availability are subject to change without notice.Advertised Package Price is based on Metricon's Freedom standard inclusions, any additional inclusions listed, Metricon's preferred siting of the home and the expected land titling date as notified by the developer and is subject to Metricon's price hold expiry date by which the owner must include essential information to Metricon to commence construction, including land title. Package price excludes customer account opening fees, stamp duty on land, legal fees and conveyancing costs including titles and property report. Typical site costs allowance is included in the price, additional site costs may apply if site survey and soil tests indicate footings and site works different to those expected for the location. Additional costs may incur if there are bushfire, wind rating or acoustic requirements. For more information on pricing and inclusions please speak with a Metricon New Home Advisor.
Newfield Real Estate Pty Ltd ACN 159 312 722, Licence number 028051L. VIC Builder's Licence: CDB-U 52967
#For details on our Lifetime structural guarantee and other terms and conditions visit www.metricon.com.au/terms-and-conditions
<State government conditions and eligibility criteria will apply. To see if you qualify visit www.sro.vic.gov.au/first-home-owner.
Price: $781,421
Bed  4 Bath  2 Car  2
Land Size: 864.00m²
Floor Area: 231sq
More Home for Less
AMIRA 25S, SEABROOK FAÇADE, LOT 2122 ACCORD STREET, STRATHFIELDSAYE 3551, IMAGINE ESTATE

If you're an eligible first home buyer, then you can apply for the First Home Owners' Grant, which is $10,000<, to this home and land package. At Metricon, we've helped thousands of first home buyers realise their new home dreams, and we can help you too.
At Metricon, we understand that great design is the sum of many parts, and for over 47 years, our mission has been to create homes where you truly love to live.
From the moment you step inside, you can't help but be impressed by the sleek modern design and wide-open, light-filled spaces of our 7 -Star energy efficient home.

With amazing flexibility, 16 façade options and eight different floorplans to choose from, the Amira is the perfect way to create your family’s dream home.

If you are looking for a home that offers something a little different then you’ll certainly find it in the four bedroom Amira. Designed to complement family living whilst providing maximum flexibility, this home features a private master suite located at the front of the home and the three other bedrooms zoned at the back. The centrally located kitchen, which has a large walk-in-pantry, looks out to the open plan living area. You will certainly have plenty of room to grow.

Want to get a feel for this floorplan in person? This design is on display at Armstrong Creek, Cobblebank, Lucas or has a virtual tour available, head to metricon.com.au/display-homes to find out more.

We build beautiful and sustainable designed homes without the architect-designed price, our package includes:
• Lifetime Structural guarantee#
• 7-star energy rating
• Double glazed windows & sliding doors
• PV solar system
• 2550mm Ceilings
• Floor Coverings Throughout
• Ducted Heating & Reverse cycle cooling
• 20mm zenith stone benchtops to kitchen
• 20mm zenith stone benchtops to bathrooms
• 900mm Kitchen Appliances
• Dishwasher
• Driveway (Up to 35m2)
Imagine your ideal lifestyle in a community designed with contemporary homes and convenient amenities.

At Metricon, we aim to provide you with innovative yet practical home designs that are designed to grow with your family's requirements well into the future. Since 1976, our design philosophy has remained the same - to design stunning homes where you'd love to live and which celebrate the diversity of Australian family life.

*Price excludes upgrade items above standard specification such as feature render and bricks, front entrance timber decking, front entry door, brick infills above garage, external lighting, fencing, concrete paths and driveway. Facade Image may also contain items not supplied by Metricon, namely landscaping and planter boxes. Aluminium double glazed windows are subject to specific home design, refer to plans.
Floorplan may not reflect developer guidelines and depicts the base Facade.
Package is correct at time of publication, availability, images, inclusions and prices are subject to change due to circumstances that may affect the price as set out in the building contract (including the land registration date not being met), changes in local, state or federal government laws and developer approval.Land is supplied by developer,land prices and availability are subject to change without notice.Advertised Package Price is based on Metricon's Freedom standard inclusions, any additional inclusions listed, Metricon's preferred siting of the home and the expected land titling date as notified by the developer and is subject to Metricon's price hold expiry date by which the owner must include essential information to Metricon to commence construction, including land title. Package price excludes customer account opening fees, stamp duty on land, legal fees and conveyancing costs including titles and property report. Typical site costs allowance is included in the price, additional site costs may apply if site survey and soil tests indicate footings and site works different to those expected for the location. Additional costs may incur if there are bushfire, wind rating or acoustic requirements. For more information on pricing and inclusions please speak with a Metricon New Home Advisor.
Newfield Real Estate Pty Ltd ACN 159 312 722, Licence number 028051L. VIC Builder's Licence: CDB-U 52967
#For details on our Lifetime structural guarantee and other terms and conditions visit www.metricon.com.au/terms-and-conditions
<State government conditions and eligibility criteria will apply. To see if you qualify visit www.sro.vic.gov.au/first-home-owner.
Price: $782,468
Bed  4 Bath  2 Car  2
Land Size: 864.00m²
Floor Area: 246sq
More Home for Less
CLARA 27, AVALON FAÇADE, LOT 2121 ACCORD STREET, STRATHFIELDSAYE 3551, IMAGINE ESTATE

If you're an eligible first home buyer, then you can apply for the First Home Owners' Grant, which is $10,000<, to this home and land package. At Metricon, we've helped thousands of first home buyers realise their new home dreams, and we can help you too.
At Metricon, we understand that great design is the sum of many parts, and for over 47 years, our mission has been to create homes where you truly love to live.
From the moment you step inside, you can't help but be impressed by the sleek modern design and wide-open, light-filled spaces of our 7 -Star energy efficient home.



Want to get a feel for this floorplan in person? This design is on display at Kalkallo, Kialla or has a virtual tour available, head to metricon.com.au/display-homes to find out more.

We build beautiful and sustainable designed homes without the architect-designed price, our package includes:
• Lifetime Structural guarantee#
• 7-star energy rating
• Double glazed windows & sliding doors
• PV solar system
• 2550mm Ceilings
• Floor Coverings Throughout
• Ducted Heating & Reverse cycle cooling
• 20mm zenith stone benchtops to kitchen
• 20mm zenith stone benchtops to bathrooms
• 900mm Kitchen Appliances
• Dishwasher
• Driveway (Up to 35m2)
Imagine your ideal lifestyle in a community designed with contemporary homes and convenient amenities.

At Metricon, we aim to provide you with innovative yet practical home designs that are designed to grow with your family's requirements well into the future. Since 1976, our design philosophy has remained the same - to design stunning homes where you'd love to live and which celebrate the diversity of Australian family life.

*Price excludes upgrade items above standard specification such as feature render and bricks, front entrance timber decking, front entry door, brick infills above garage, external lighting, fencing, concrete paths and driveway. Facade Image may also contain items not supplied by Metricon, namely landscaping and planter boxes. Aluminium double glazed windows are subject to specific home design, refer to plans.
Floorplan may not reflect developer guidelines and depicts the base Facade.
Package is correct at time of publication, availability, images, inclusions and prices are subject to change due to circumstances that may affect the price as set out in the building contract (including the land registration date not being met), changes in local, state or federal government laws and developer approval.Land is supplied by developer,land prices and availability are subject to change without notice.Advertised Package Price is based on Metricon's Freedom standard inclusions, any additional inclusions listed, Metricon's preferred siting of the home and the expected land titling date as notified by the developer and is subject to Metricon's price hold expiry date by which the owner must include essential information to Metricon to commence construction, including land title. Package price excludes customer account opening fees, stamp duty on land, legal fees and conveyancing costs including titles and property report. Typical site costs allowance is included in the price, additional site costs may apply if site survey and soil tests indicate footings and site works different to those expected for the location. Additional costs may incur if there are bushfire, wind rating or acoustic requirements. For more information on pricing and inclusions please speak with a Metricon New Home Advisor.
Newfield Real Estate Pty Ltd ACN 159 312 722, Licence number 028051L. VIC Builder's Licence: CDB-U 52967
#For details on our Lifetime structural guarantee and other terms and conditions visit www.metricon.com.au/terms-and-conditions
<State government conditions and eligibility criteria will apply. To see if you qualify visit www.sro.vic.gov.au/first-home-owner.
Price: $805,220
Denver by Metricon Homes