Beechworth by Mimosa Homes

DISPLAY HOME

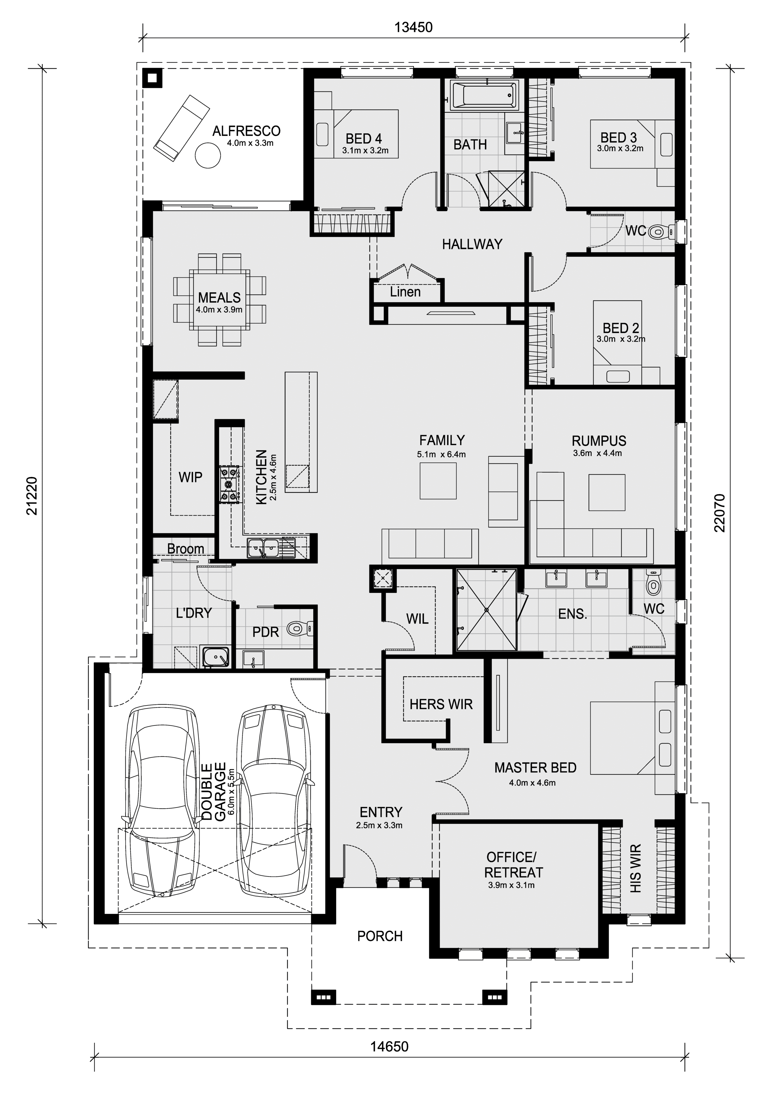
This spacious, contemporary, open-plan Beechworth is a masterpiece for those who love hosting gatherings and events

The expansive open kitchen, along with its impressive walk-in pantry, seamlessly connects to the dining and living areas, which, in turn, open up to the inviting alfresco space. This harmonious layout creates a generous shared area that’s perfect for entertaining. With four bedrooms, a private master suite boasting a spacious en-suite with a large shower and “his and hers” walk-in robes, a dedicated retreat or home office, and a convenient walk-in linen closet, this home is perfectly tailored for everyday family living.

 


Floor-plan options for Beechworth

Beechworth 328
Bed 4
Bath 2
Car 2
Home Design: Beechworth
Building Type: Single Storey
Floor Area: 328m2
House Width: 14.65m
House Length: 22.07m
Min Block Width: 16m

Display Homes & 3D Tours for Beechworth by Mimosa Homes

Loading...

More House and Land Packages by Mimosa Homes (Home Builder)

Bed  3 Bath  2 Car  1
Suburb: Weir Views VIC 3338
Land Size: 286.00m²
Floor Area: 133.7m²
Exceptional Value 3‑Bedroom House & Land Package at Exford Waters!
At Exford Waters, every detail is considered so you can build with confidence and live with ease. Whether you’re a first‑home buyer, a growing family, or looking to invest in a quality community, you’ll find flexibility and value here

Package Inclusions:
- Inclusive of site costs & connections with H1 class slab as per standard inclusions!
- 50 Year Structural Warranty!
- Quality floor coverings throughout entire home!
- Double Glazed Awning windows!
- 600mm S/S upright oven and cook top with S/S canopy rangehood!
- Stainless steel Dishwasher
- Pre Priced upgrades and more!

Why Exford Waters?
• Premium riverside living — enjoy waterfront views, wetlands, landscaped parklands and the peaceful surrounds of the Werribee River.
• A ready‑made community — parks, playgrounds, walking trails, and open green space are all built into the estate plan.
• Convenience at your doorstep — shops, supermarkets (e.g. a major grocery store just minutes away), retail centres, and essential services are near, making everyday life easy.
• Great schooling options — local primary and secondary schools nearby, with additional educational facilities planned in the estate.
• Well‑connected — Exford Waters offers easy access to major roads and public transport

Contact Shaam 0499 123 119 today for more information!
Price: $499,441
Beechworth by Mimosa Homes