Macquarie by MOJO Homes
DISPLAY HOME
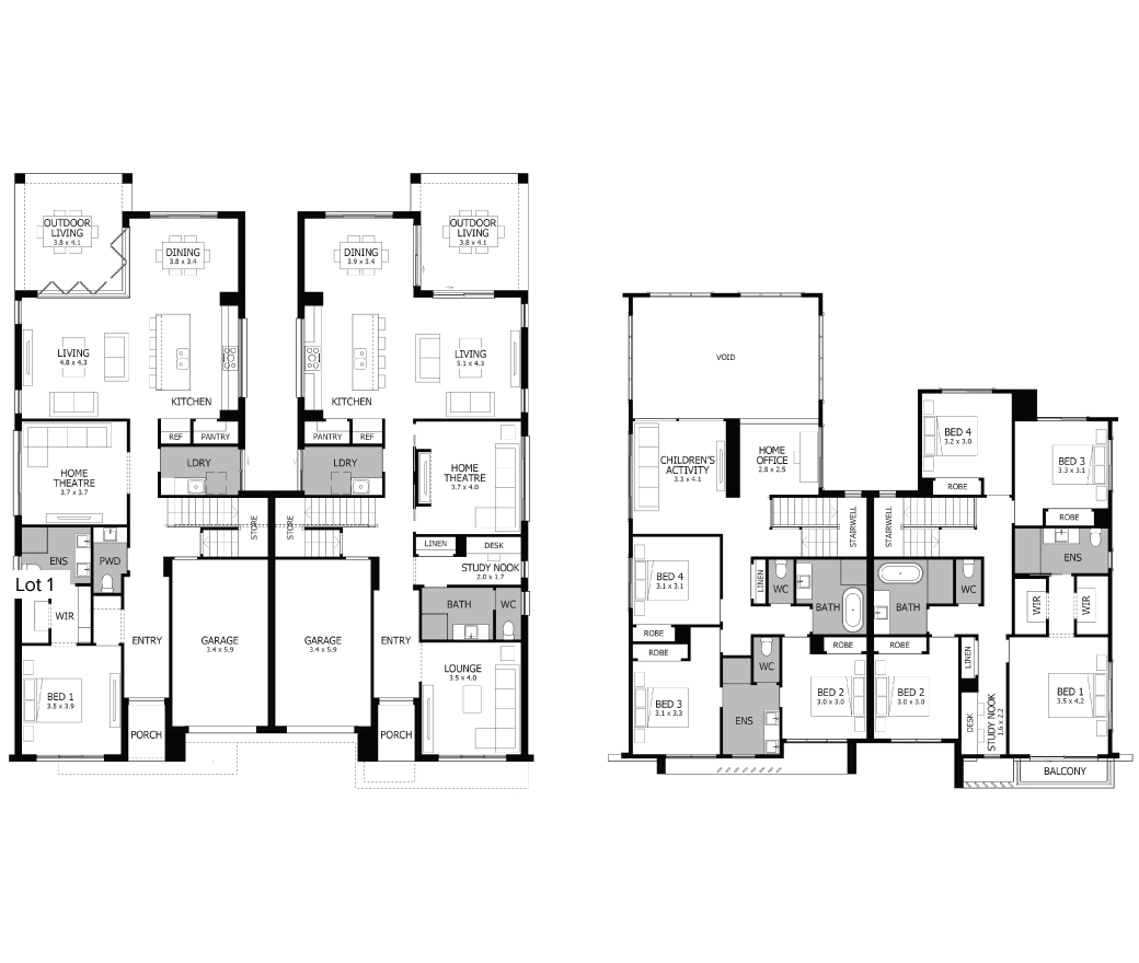
The Macquarie is a generously sized double storey Duplex design with a versatile floor plan, perfect for a growing family. You’ll feel right at home as soon as you walk through the front door, with the design offering all the essentials and so much more. The ground floor includes a front Lounge followed by a bathroom and study nook. The large open plan living, kitchen and dining at the rear, sits alongside the outdoor living for a seamless indoor-outdoor connection, creating the perfect space for year round entertaining. The first floor is for rest and retreat with a master suite, three bedrooms and second bathroom as well as a second study nook, great for those working from home.
Display Homes & 3D Tours for Macquarie by MOJO Homes
Loading...
8
