Newport by MOJO Homes

DISPLAY HOME

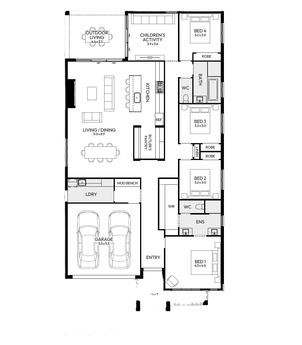
The Newport 28 One is a modern family haven, offering a spacious and well-thought-out floor plan.

With four generously sized bedrooms, including a main bedroom complete with a walk-in robe and ensuite, this home provides both comfort and privacy. The heart of the home is its open-plan kitchen, dining, and living area, seamlessly connected to the outdoor living space, perfect for entertaining.

A dedicated home theatre adds a touch of luxury, while the additional bedrooms are conveniently positioned near the main bathroom, creating a functional yet stylish layout for everyday living.

 


Floor-plan options for Newport

Newport 28 One
Bed 4
Bath 2
Living 2
Car 2
Builder: MOJO Homes
Home Design: Newport
Building Type: Single Storey
Floor Area: 259.28m2
House Width: 12.15m
House Length: 21.5m

Display Homes & 3D Tours for Newport by MOJO Homes

Loading...
Newport by MOJO Homes