Bellevue by Montgomery Homes

DISPLAY HOME

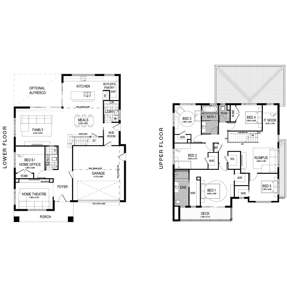
The expansive six-bedroom Bellevue 321 double-storey home design effortlessly seeks to amplify your work/life balance.
No space goes unnoticed in this home design — the impressive lower level entertaining area includes a spacious kitchen, family and meals area alongside a Butler’s and walk-in pantry. Sealing this all-inclusive kitchen is an expansive and luxurious bench space — perfect for appliances or preparing a feast for friends and family.
A home theatre sits adjacent to Bedroom 6 (or home office), which has a full bathroom adjoining (including toilet and shower) — making this the ultimate guest zone.

Crafted with family living in mind, an extra-large garage completes the lower level, ideal for storing bikes, toys and lawn equipment — with adjoining access to the mudroom and laundry, providing the ultimate storage point for wet umbrellas, muddy shoes and school bags.
Ascending the stairs, find the rumpus room and bonus study nook — the perfect homework station tucked away for privacy. The master suite rings with luxury with an ensuite and two walk-in robes, accentuated by a private deck — truly the parents oasis. The four remaining bedrooms are spread across the upper level, with convenient access to the main bathroom and separate powder room.

The Bellevue 321 features an unparalleled six bedrooms, three bathrooms, and is cleverly and evenly spread across two levels. The Bellevue 321 is ideal for level sites with minimum frontage of 14.9m (or 14.3m if zero lot applicable) or wider, and is available in five stunning facades — Hamptons, Manhattan, Grande, Executive, Metro.

 


Floor-plan options for Bellevue

Bellevue 321
Bed 5
Bath 2.5
Living 2
Car 2
Home Design: Bellevue
Building Type: Double Storey
Floor Area: 322.41m2
House Width: 12.3m
House Length: 16.7m
Min Block Width: 14.9m
Bellevue 288
Bed 4
Bath 2.5
Living 2
Car 2
Home Design: Bellevue
Building Type: Double Storey
Floor Area: 288.73m2
House Width: 12.7m
House Length: 15.1m
Min Block Width: 14.9m

Display Homes & 3D Tours for Bellevue by Montgomery Homes

Loading...
Bellevue by Montgomery Homes