Byron by Montgomery Homes

DISPLAY HOME

Discover our stunning 4 bedroom home

Ideal for level sites, the Byron suite of double-storey home designs is both sophisticated and practical.
The lower level of the four-bedroom Byron 295 ignites family living — with an open-plan kitchen, meals and family zone which is comfortably aided by a contemporary Butler’s Pantry and IT nook. Providing ingress from the double garage and workshop, a combined mud room and laundry is the ultimate entry point to stop muddy footprints in their tracks. Alongside a home theatre is a dedicated study making working from home and studying easier every day.
A relaxation oasis, the upper floor conveniently hides the master suite to the rear of the home, with a dual walk-in robe and spacious ensuite. The remaining three bedrooms are located close by the main bathroom and each include a walk-in robe to ensure everyone has ample storage.
The upper level rumpus room provides yet another space for entertaining and relaxing. Bring the outside in with an external deck from the rumpus room.
The Byron 295 is ideal for level sites with a 12.9m frontage (or 12.3m if zero lot applicable) or larger, and is available in four stunning facades — Hamptons, Manhattan, Executive and Metro.

 


Floor-plan options for Byron

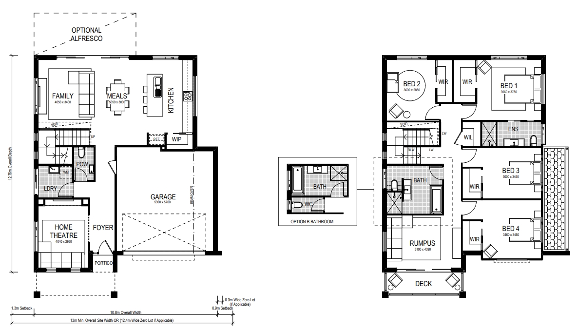
Byron 250
Bed 4
Bath 2.5
Living 2
Car 2
Home Design: Byron
Building Type: Double Storey
Floor Area: 248.60m2
House Width: 10.8m
House Length: 12.76m
Byron 323
Bed 4
Bath 3.5
Living 2
Car 2
Home Design: Byron
Building Type: Double Storey
Floor Area: 324.15m2
House Width: 10.7m
House Length: 17.4m
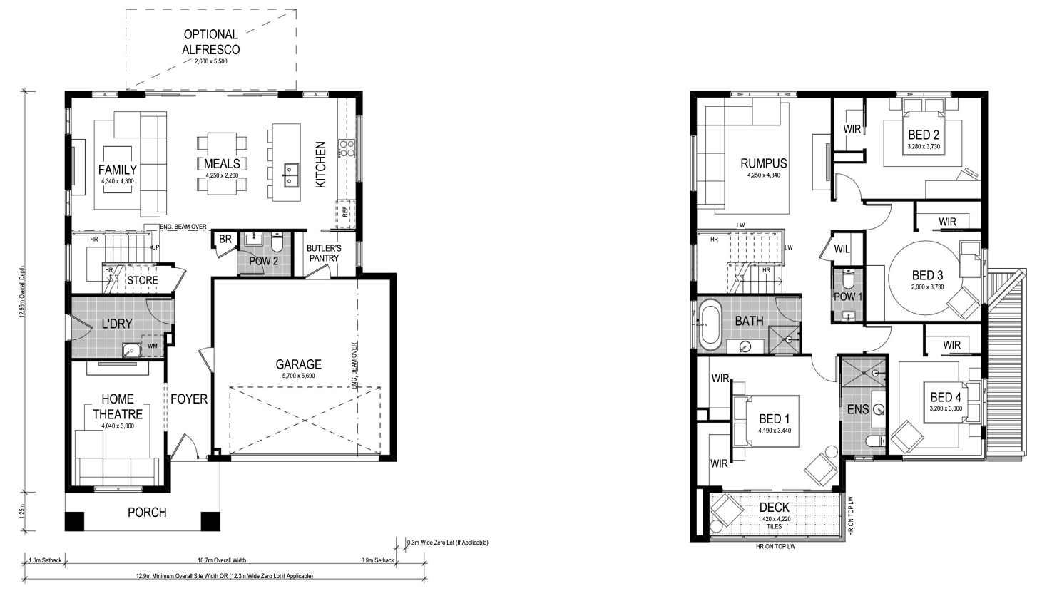
Byron 262
Bed 4
Bath 2.5
Car 2
Home Design: Byron
Building Type: Double Storey
Floor Area: 257.94m2
House Width: 10.7m
House Length: 12.96m
Min Block Width: 12.9m

Display Homes & 3D Tours for Byron by Montgomery Homes

Loading...
Byron by Montgomery Homes