Catalina by Montgomery Homes

DISPLAY HOME

Discover our Catalina 266 design, a contemporary 5 bedroom home perfectly suited to narrow sites.

Inspired by the rugged beauty of the Australian landscape, Shaynna Blaze’s “Outback” Signature Collection theme blends earthy tones, natural materials, and rustic textures to create a home that feels grounded, authentic, and welcoming. On display in the Catalina 1 266, this slimline double-storey design is tailored for narrow blocks yet delivers impressive space with five bedrooms and three bathrooms.

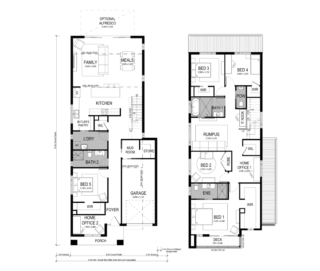
The Grande façade, with its Artisan ‘Callala’ stone column, frames a striking porch entry, while the grand foyer leads you to the first of two home office spaces. Perfect for multigenerational families or guests, the lower level also includes a spacious bedroom with walk-in robe and fully appointed bathroom. Every detail is designed for practicality. The mudroom and storage nook connect directly to the garage, while the nearby laundry and walk-in linen keep household tasks organised. At the rear, the kitchen flows into the Butler’s Pantry, family, and alfresco spaces, creating a light-filled hub for everyday living and entertaining. An Artisan Stone ‘Organic Callala’ feature wall adds depth and texture, reinforcing the rugged luxury of the Outback theme.

Upstairs, a central rumpus room welcomes you, highlighted by an Easycraft Silhouette Cove feature wall. Three generous bedrooms surround the main bathroom, complete with a freestanding bath. Toward the front, the master suite delivers a true retreat – with an oversized walk-in robe, ensuite, and private deck. A second home office nearby ensures flexibility for modern living.

The Catalina 1 266 with Outback styling proves that even on a narrow block, you can enjoy grand proportions, clever functionality, and the warmth of a home inspired by Australia’s natural landscape.


Floor-plan options for Catalina

Catalina 266
Bed 5
Bath 3
Car 1
Home Design: Catalina
Building Type: Double Storey
Floor Area: 264.49m2
House Width: 8.2m
House Length: 19.6m
Min Block Width: 9.8m

Display Homes & 3D Tours for Catalina by Montgomery Homes

Loading...
Catalina by Montgomery Homes