Riviera 2 by Montgomery Homes

DISPLAY HOME

An elegant 4 bedroom split level home design, perfectly suited to your uphill sloping block. Learn more.

The outstanding Riviera home design suite evokes a lifestyle of inspiration, connection and relaxation. Clever implementation of Montgomery Homes specialist sloping site techniques results in a tri-level floorplan which maximises natural air flow and removes the need for excessive retaining walls, all whilst ensuring everyone has their own space to live in.

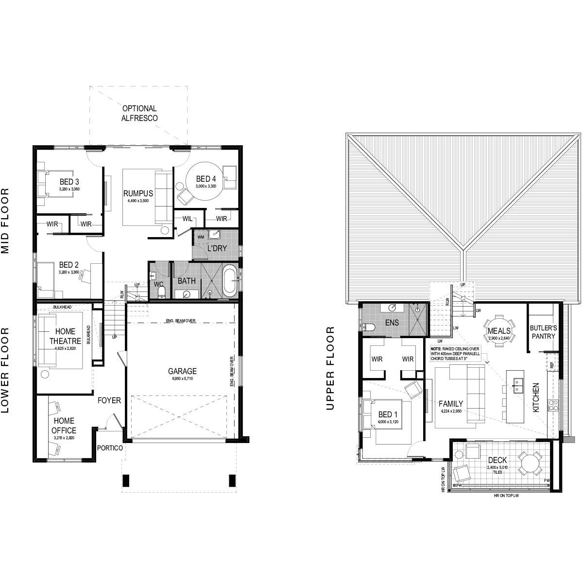
A stunning porch welcomes you to the Riviera 2 264, with a spacious foyer leading to the private home office — ideal for the work-from-home professional. An adjacent home theatre is perfect for movie marathons and completes the first level of the floorplan.

Ascend the stairs to the mid-level and find the rejuvenation hub of this home design. Three spacious bedrooms (each with a walk-in robe) are conveniently placed nearby the main bathroom. A standout feature of the mid-level is the rumpus room — this zone truly is the ultimate teen retreat! A luxurious laundry completes the mid-level of the floorplan.

Be transported to your entertainment haven on the upper level — complete with an open-plan kitchen, Butler’s Pantry, meals and family zone. Unfolding to a covered outdoor deck from the kitchen, the Riviera 2 264 has been crafted for the ultimate indoor-outdoor lifestyle — allowing you to soak in the views from your beautiful entertainment haven whilst maximising on natural airflow and daylight. Completing the upper level is your luxurious master suite escape — featuring a dual walk-in robe and well-appointed ensuite.

 


Floor-plan options for Riviera 2

Riviera 2 264
Bed 4
Bath 2
Living 2
Car 2
Home Design: Riviera 2
Building Type: Double Storey
Floor Area: 263.63m2
House Width: 10.72m
House Length: 16.2m
Min Block Width: 12.92m

Display Homes & 3D Tours for Riviera 2 by Montgomery Homes

Loading...
Riviera 2 by Montgomery Homes