Trinity by Montgomery Homes

DISPLAY HOME

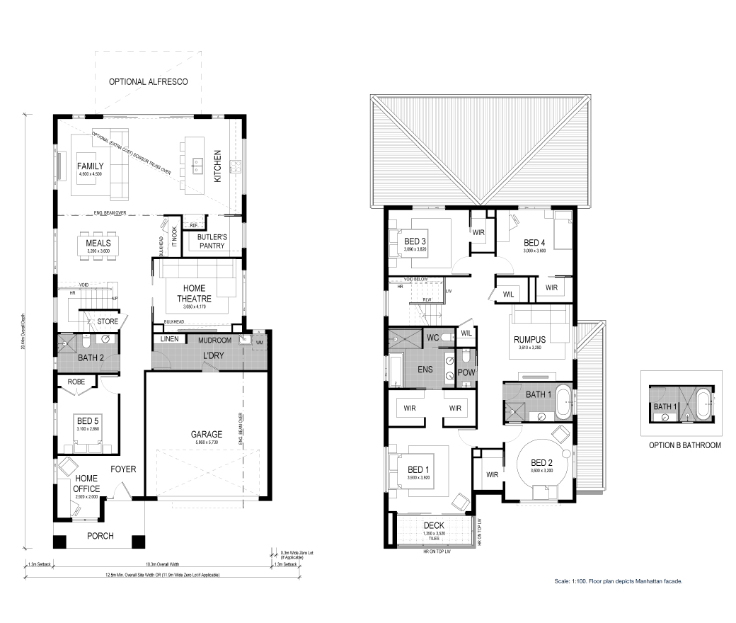
The brand-new double-storey four-bedroom Trinity 286 truly amplifies the modern family lifestyle. Secluded at the front of the home, the private home office presents a convenient work-from-home environment — along with opportune access to the powder room. Entertaining comes alive throughout the remaining lower level zones, with the home theatre introducing an oversized and open-plan meals, family and kitchen area. A nearby Butler’s Pantry is aesthetically tucked away and is ideal for preparing food and hiding mess, with an optional alfresco sealing the coveted indoor-outdoor lifestyle. A study nook completes the lower level, and is the perfect location for kids to complete their homework whilst dinner is being prepared.

Providing a centrepiece of luxury and status — the Trinity 286 features a stunning U-shaped staircase to the upper level, which hosts a suite of four bedrooms, two bathrooms and an additional living space. The master bedroom features a private deck for relaxing on as the sun rises, along with a dual walk-in-robe and luxurious ensuite. Three remaining bedrooms surround the main bathroom and a bonus rumpus room! A walk-in linen cupboard completes the upper level, which ensures you have plenty of storage space for linen and towels. Consider the alternate floorplan, which places the master bedroom to the rear of the upper level.

The Trinity 286 is ideal for level sites with a 12.5m frontage or larger (or 11.8m if zero lot is available). This home design is available in five stunning facade options — Metro, Executive, Grande, Hamptons and Manhattan.

 


Floor-plan options for Trinity

Trinity 286
Bed 4
Bath 2.5
Living 2
Car 2
Home Design: Trinity
Building Type: Double Storey
Floor Area: 285.92m2
House Width: 11.9m
House Length: 18.65m
Min Block Width: 11.9m
Trinity 323
Bed 5
Bath 3
Car 2
Home Design: Trinity
Building Type: Double Storey
Floor Area: 320.63m2
House Width: 10.3m
House Length: 20.44m
Min Block Width: 11.9m

Display Homes & 3D Tours for Trinity by Montgomery Homes

Loading...
Trinity by Montgomery Homes