Beachcomber Grandeur by New Generation Homes

DISPLAY HOME

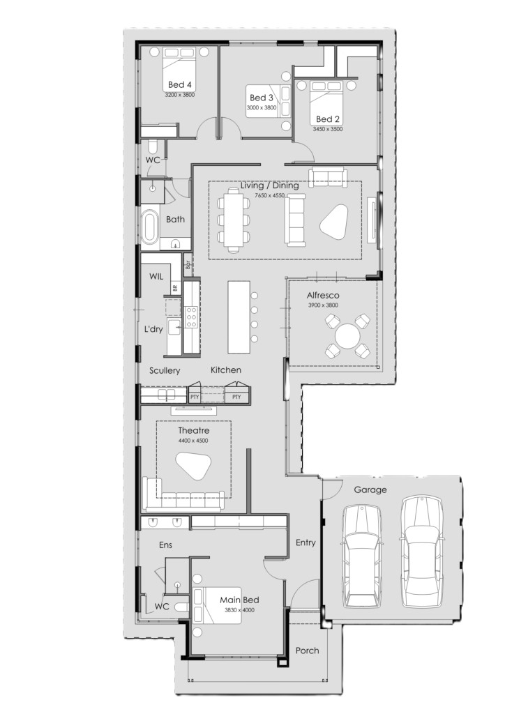
The Beachcomber Grandeur’s unique layout blends open-plan living with a central alfresco, creating ideal indoor-outdoor living. The spacious kitchen with an island and a scullery serves as a hub, and two minor bedrooms feature walk-in robes. A dedicated theatre completes the design.


Floor-plan options for Beachcomber Grandeur

Beachcomber Grandeur
Bed 4
Bath 2
Car 2
Building Type: Single Storey
Floor Area: 269m2
Min Block Width: 15m

Display Homes & 3D Tours for Beachcomber Grandeur by New Generation Homes

Loading...
Beachcomber Grandeur by New Generation Homes