Cambridge by Nu Trend Quality Homes
DISPLAY HOME
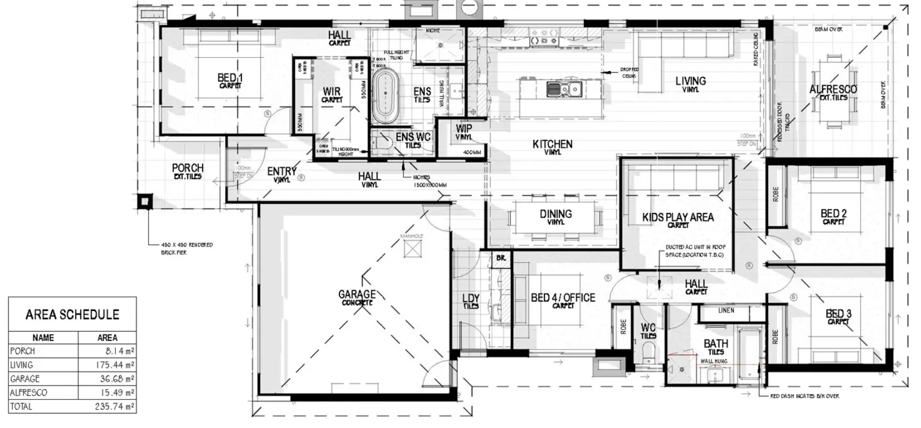
Large Master Suite at the front of the home with a custom WIR and spacious Ensuite.
Large Designer kitchen with integrated Dishwasher and instant hot and chilled water system.
Private kids wing to the rear of the home with a dual purpose Activity or Media Room.
Display Homes & 3D Tours for Cambridge by Nu Trend Quality Homes
Loading...

4