Perfect for growing families and narrow lots, this popular dual-level design offers four spacious bedrooms plus a luxurious master retreat with ensuite and bathtub. Smart storage is built in throughout to keep everything organized. Upstairs, a study and rumpus room give kids space to work and play, while a private fifth bedroom with ensuite downstairs is ideal for guests or teens.


Floor-plan options for Ava

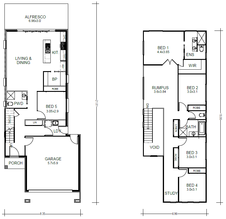
Ava 267
Bed 5
Bath 3
Car 2
Home Design: Ava
Building Type: Double Storey
Floor Area: 267m2
House Width: 8.35m
House Length: 21.81m
Min Block Width: 10m
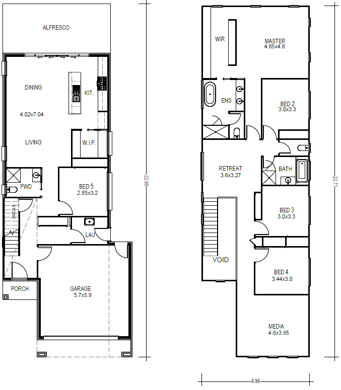
Ava 276
Bed 5
Bath 3
Car 2
Home Design: Ava
Building Type: Double Storey
Floor Area: 276m2
House Width: 8.35m
House Length: 23.01m
Min Block Width: 10m
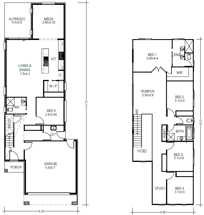
Ava 302
Bed 5
Bath 3
Car 2
Home Design: Ava
Building Type: Double Storey
Floor Area: 302m2
House Width: 8.35m
House Length: 22.86m
Min Block Width: 10m
Ava 308 Balcony
Bed 5
Bath 3
Car 2
Home Design: Ava
Building Type: Double Storey
Floor Area: 308m2
House Width: 8.35m
House Length: 23.46m
Min Block Width: 10m
Ava 340
Bed 5
Bath 4
Car 2
Home Design: Ava
Building Type: Double Storey
Floor Area: 340m2
House Width: 8.35m
House Length: 25.15m
Min Block Width: 10m