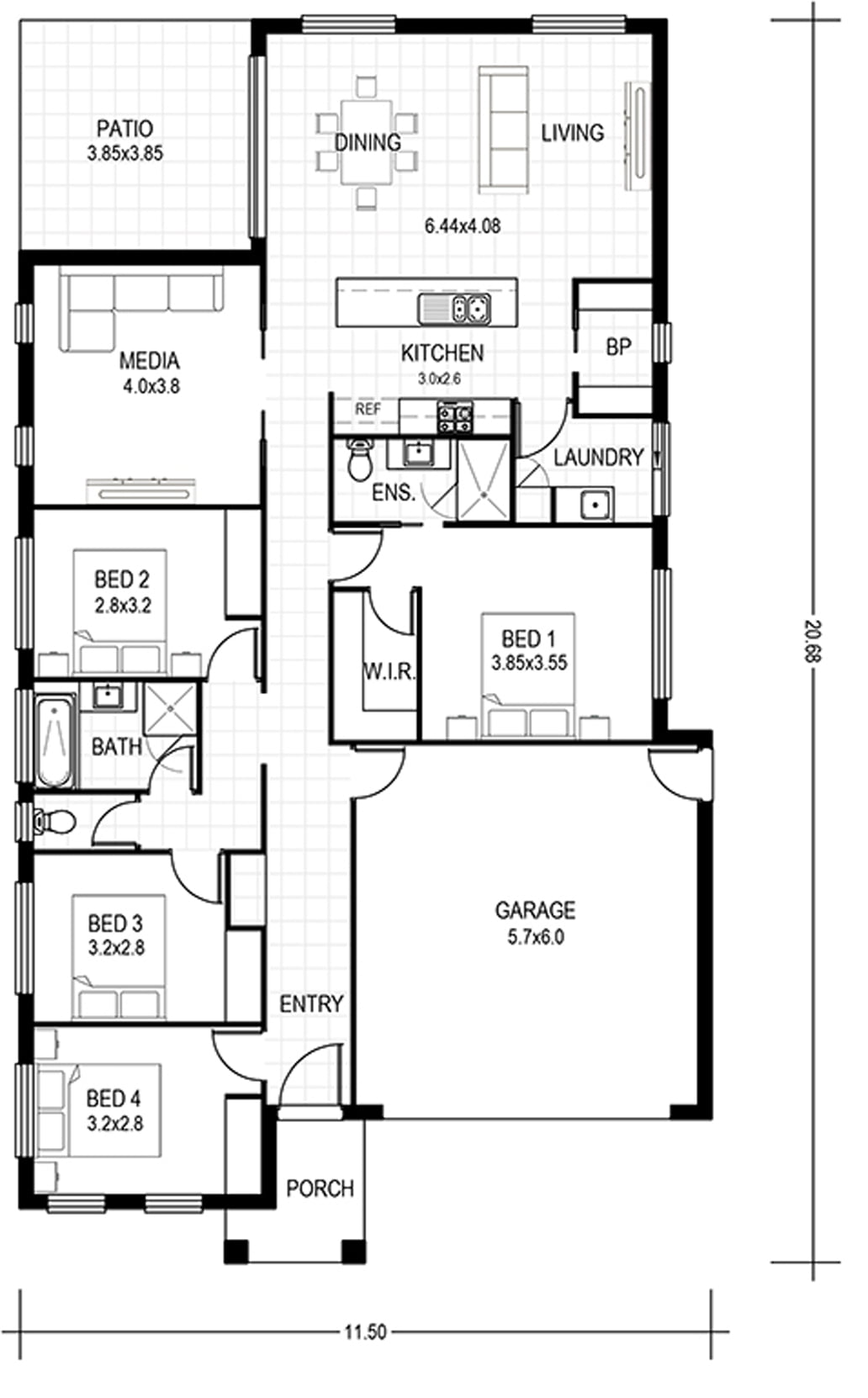
This four-bedroom, two-bathroom home has bedrooms at the front of the house and living at the rear. The central kitchen brings the family together with open-plan living flowing out to an alfresco entertaining area. Featuring a double garage, large media room, butler’s pantry and internal laundry, Bree has everything a growing family needs.


Floor-plan options for Bree

Bree 211
Bed 4
Bath 2
Car 2
Home Design: Bree
Building Type: Single Storey
Floor Area: 211m2
House Width: 12.05m
House Length: 20.34m
Min Block Width: 14m
Bree 237
Bed 4
Bath 2
Car 2
Home Design: Bree
Building Type: Single Storey
Floor Area: 237m2
House Width: 12.05m
House Length: 22.7m
Min Block Width: 14m