The Edge is a beautifully functional four-bedroom home, with two bathrooms, a separate media room and a double garage. The gourmet kitchen at the heart of the home features a stunning long island bench and abundant cupboard space, including a generous butler’s pantry. This home is made for entertaining with the open-plan living area opening out to a large alfresco area – perfect for those summer get-togethers. The kids will be happy with their own wing, including a retreat and study nook. Parents can escape to their master suite – a sanctuary strategically placed away from the other bedrooms – featuring a large walk-in robe and ensuite with double vanities. This design represents modern living at its finest.


Floor-plan options for Edge

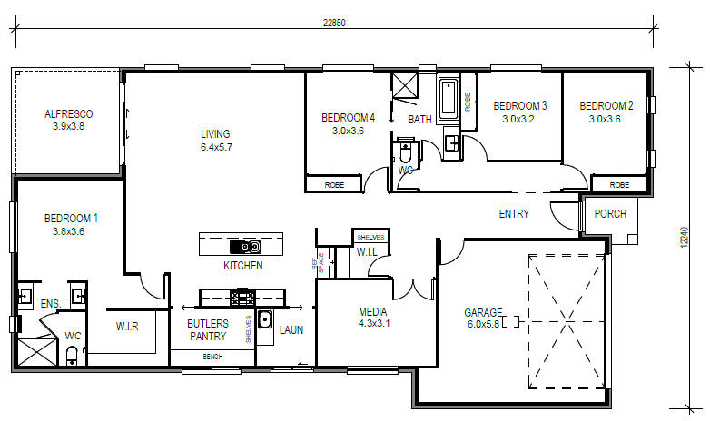
Edge 252 RMB
Bed 4
Bath 2
Car 2
Home Design: Edge
Building Type: Single Storey
Floor Area: 252m2
House Width: 12.24m
House Length: 23m
Min Block Width: 14m
Edge 195
Bed 4
Bath 2
Car 2
Home Design: Edge
Building Type: Single Storey
Floor Area: 195m2
House Width: 11m
House Length: 21.65m
Min Block Width: 14m
Edge 219
Bed 4
Bath 2
Car 2
Home Design: Edge
Building Type: Single Storey
Floor Area: 219m2
House Width: 11.3m
House Length: 22.37m
Min Block Width: 12.5m
Edge 252
Bed 4
Bath 2
Car 2
Home Design: Edge
Building Type: Single Storey
Floor Area: 252m2
House Width: 12.24m
House Length: 23m
Min Block Width: 14m
Edge 271
Bed 4
Bath 2
Car 2
Home Design: Edge
Building Type: Single Storey
Floor Area: 271m2
House Width: 12.95m
House Length: 23m
Min Block Width: 16m