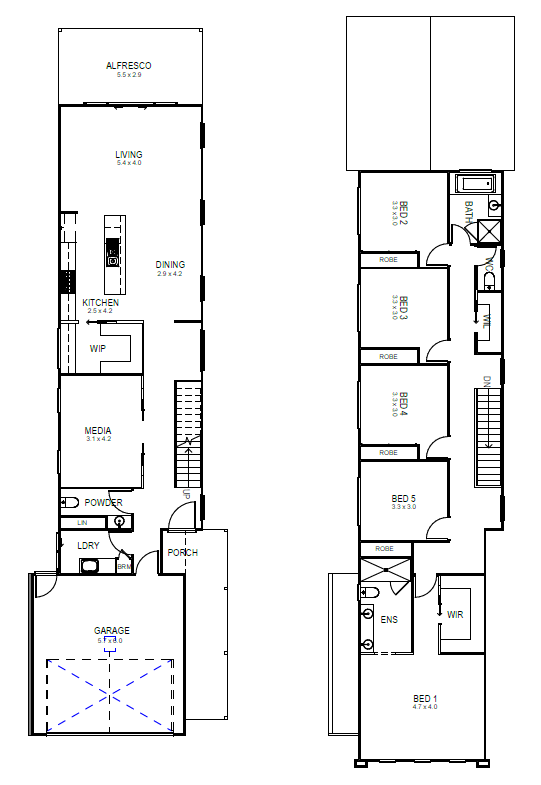
Designed for a narrow lot, this double-storey home still has it all – a parent’s retreat, media room, full-sized laundry, study nook and three additional generous bedrooms with built-in robes. In the kitchen you’ll find a large island benchtop with ample cupboard space and a large butler’s pantry. The Willow series means that there’s no need to sacrifice comfort and space when you’re working with a narrow lot.


Floor-plan options for Willow

Willow 278
Bed 4
Bath 2.5
Car 2
Home Design: Willow
Building Type: Double Storey
Floor Area: 278.0m2
Min Block Width: 9m
Willow by OJ Pippin