Bella Vista by Ownit Homes

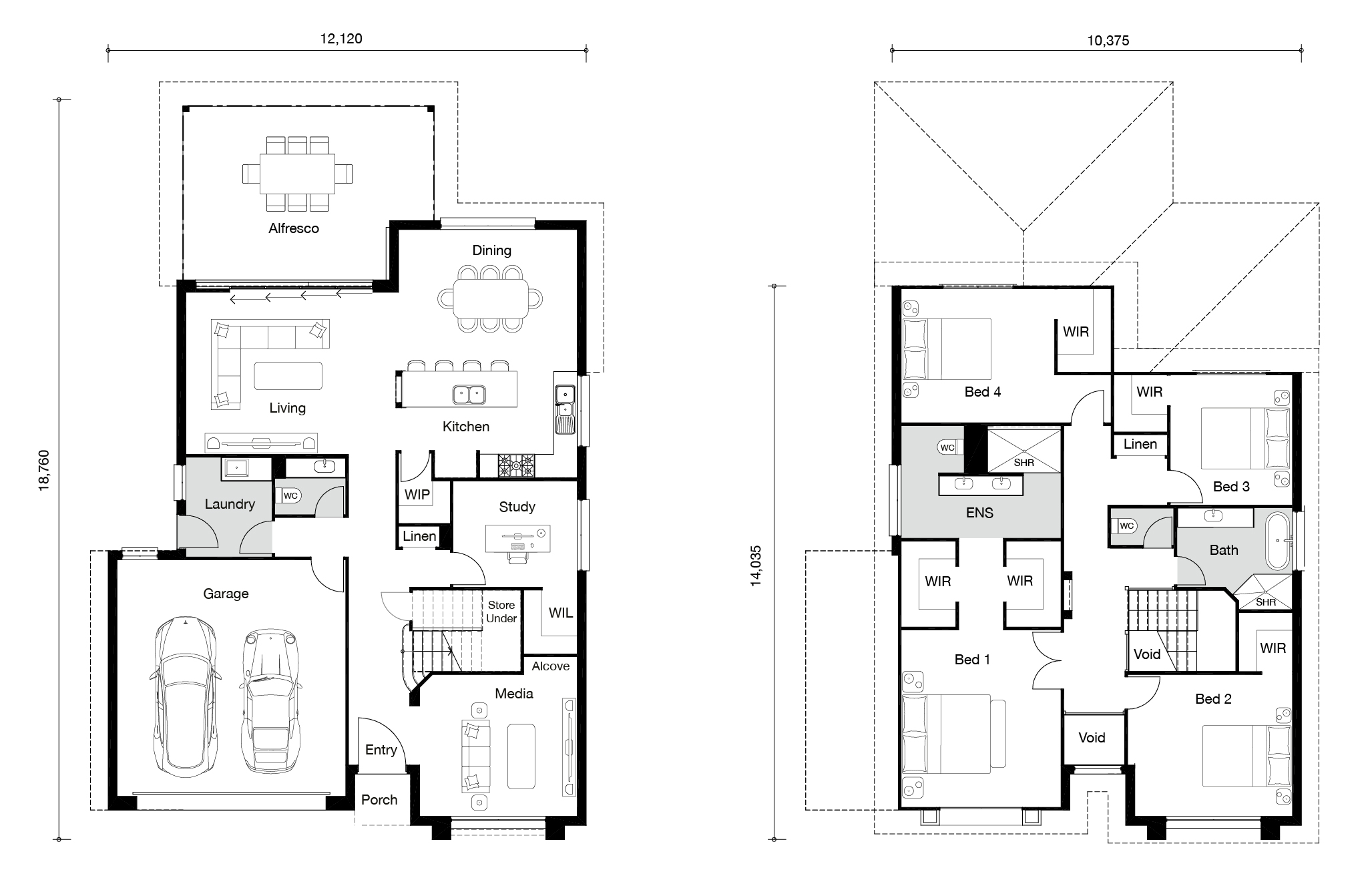
The Bella Vista is perfect for Queensland living, with wide stackable doors opening up the open plan living area on to the large alfresco so you can enjoy spending time outdoors with family and friends.

This dream family home offers an abundance of family living spaces and includes a media room upon entry, a study and a roomy family living and dining area on the lower level.

Upstairs an opulent master bedroom features a double walk in wardrobe and luxurious ensuite which is complemented by three large bedrooms, each with their own walk in robe, ideal for large families wanting their space.


Floor-plan options for Bella Vista

Bella Vista
Bed 5
Bath 2.5
Living 2
Car 2
Builder: Ownit Homes
Home Design: Bella Vista
Building Type: Double Storey
Floor Area: 316m2
House Width: 12.12m
House Length: 18.76m
Min Block Width: 14m
Bella Vista by Ownit Homes