Bellaire by Ownit Homes

Elegance and ease combine for easy living

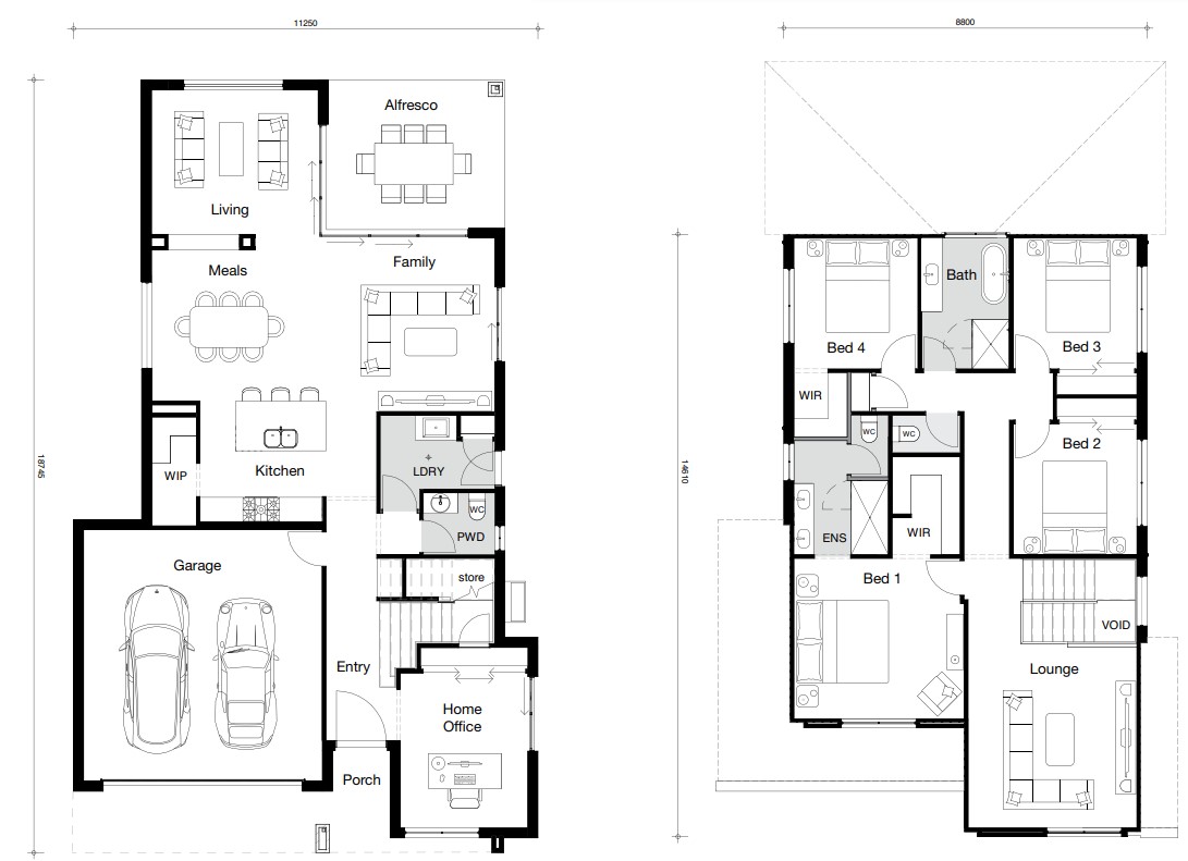
An on-trend, nature-inspired colour palette gives a fresh and luxurious feel throughout the open plan living area comprising of meals, family and living spaces, which all seamlessly flow through open stacker doors to an airy outdoor alfresco space.

Beautiful materials and textures in relaxing earthy tones mix style with easy living throughout this home, which offers plenty of spacious family living options including four bedrooms, two bathrooms, home office and three living areas.

Your very own oasis from everyday life, the Bellaire embodies relaxed Queensland style.


Floor-plan options for Bellaire

Bellaire
Bed 4
Bath 2.5
Living 3
Car 2
Builder: Ownit Homes
Home Design: Bellaire
Building Type: Double Storey
Floor Area: 286m2
House Width: 11.25m
House Length: 18.75m
Min Block Width: 12.5m
Bellaire by Ownit Homes