Bentley by Ownit Homes

The creative use of space and thoughtfully placed windows maximise living areas in this narrow-lot home.

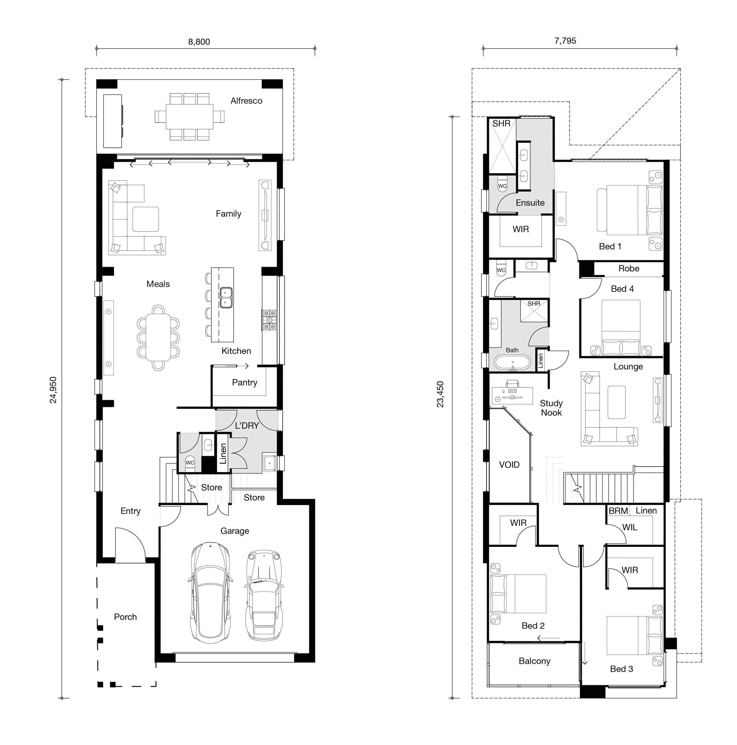
Walking into the Bentley, you will notice an abundance of natural light streaming through a double set of sashless windows, reaching through a void connecting the upper and lower levels.

Upstairs the home features a lounge area with study nook, master bedroom complete with ensuite and walk-in robe, three large bedrooms and ample storage options.

With a striking architecturally designed facade, this home wins for its practicality and warm elegance.


Floor-plan options for Bentley

Bentley
Bed 4
Bath 2.5
Living 2
Car 2
Builder: Ownit Homes
Home Design: Bentley
Building Type: Double Storey
Floor Area: 358m2
House Width: 8.8m
House Length: 24.95m
Min Block Width: 10m
Bentley by Ownit Homes